Zamknij Zamknij

Fuente Álamo · Las Palas Willa · Nowy budynek

#Ref: NB-31277
€ 242.000
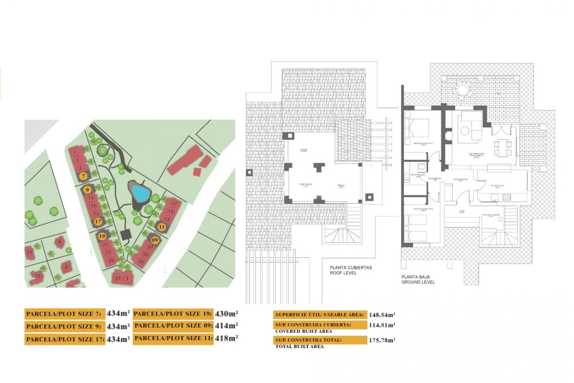
  • Powierzchnia 175m2
  • Działka 430m2
  • Sypialnie 2
  • Łazienki 1

Fuente Álamo · Las Palas Willa · Nowy budynek

Opis

KLUCZ GOTOWY BLIŹNIACZY WILLA W FUENTE ALAMO, MURCIA

Szczegóły oferty

Sypialnie: 2
Łazienki: 1
Powierzchnia: 175m2
Przydatne: 148m2
Działka: 430m2
Odległość od plaży: 7500 Mts.
Key Ready
Location: Rural, Urbanisation
Parking - Space
Terrace: 45 Msq.
Useable Build Space: 148 Msq.
Beach: 7500 Meters
Storage / Trastero
Garden
Gated
Number of Parking Spaces: 1
Air Conditioning: Pre-Installed
Double Bedrooms: 2

Lokalizacja

Poproś o informacje

Skontaktuj się z nieruchomościami Costa Group Estates

Responsable del tratamiento: VDM ESTATES GROUP SL, Finalidad del tratamiento: Gestión y control de los servicios ofrecidos a través de la página Web de Servicios inmobiliarios, Envío de información a traves de newsletter y otros, Legitimación: Por consentimiento, Destinatarios: No se cederan los datos, salvo para elaborar contabilidad, Derechos de las personas interesadas: Acceder, rectificar y suprimir los datos, solicitar la portabilidad de los mismos, oponerse altratamiento y solicitar la limitación de éste, Procedencia de los datos: El Propio interesado, Información Adicional: Puede consultarse la información adicional y detallada sobre protección de datos Aquí.
WhatsApp