Close Close
Costa Group Estates

La Zenia Boulevard Shoppingcenter Orihuela Costa

La Zenia Boulevard, Calle Jade 2, Local 90 Alicante, Spain

+34 966 890 625 / +32 15 540 153

Marbella Golden Mile

Oasis Business Centre The Golden Mile

+34 966 890 625 / +34 643 057 719

info@costagroupestates.com

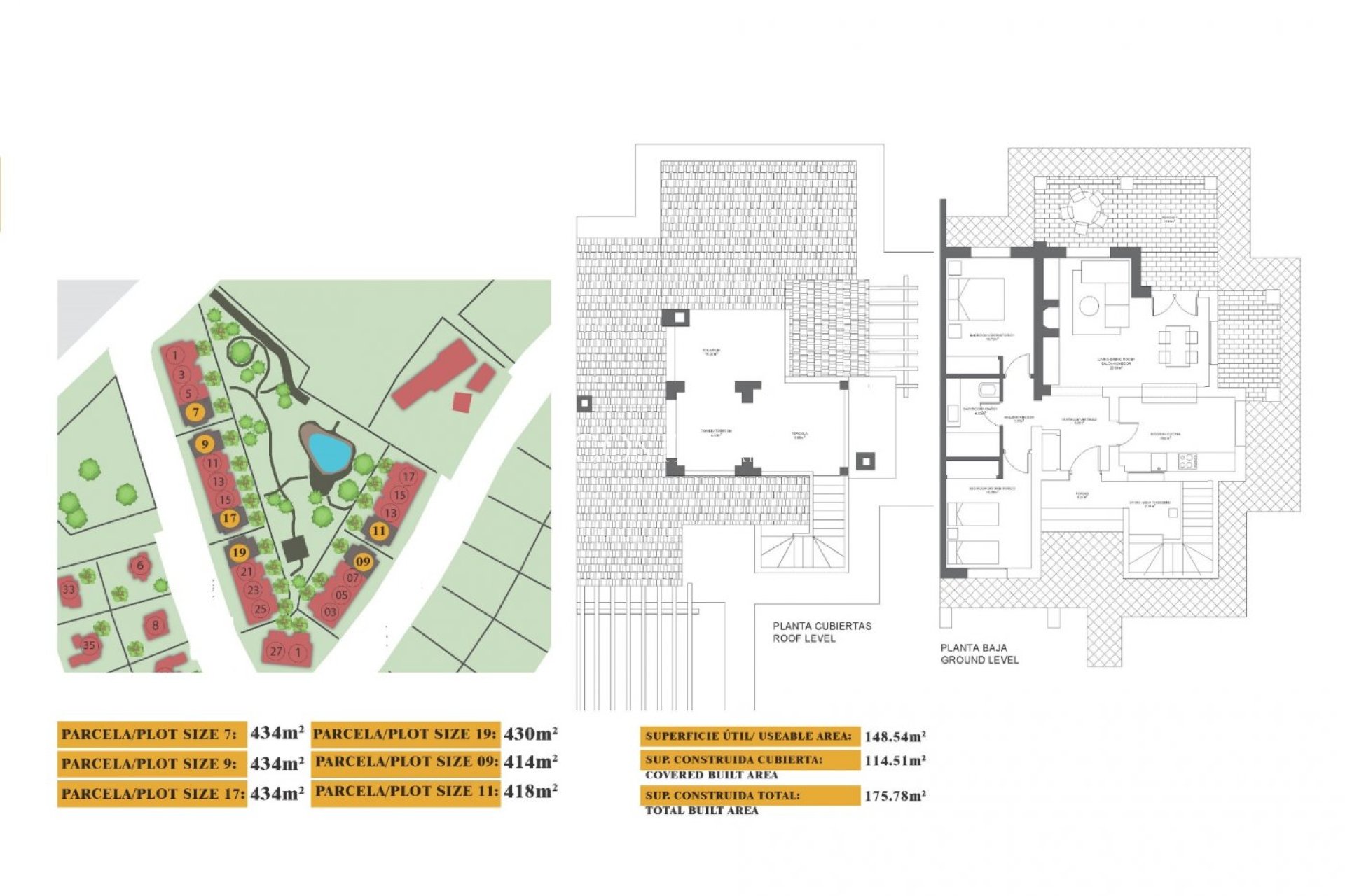
Fuente Álamo · Las Palas Villa · New Build

#Ref: NB-31277
€ 242.000
  • Built 175m2
  • Plot 430m2
  • Bedrooms 2
  • Bathrooms 1

Fuente Álamo · Las Palas Villa · New Build

Description

KEY READY SEMI-DETACHED VILLA IN FUENTE ALAMO, MURCIA

Features

Bedrooms: 2
Bathrooms: 1
Built: 175m2
Usable: 148m2
Plot: 430m2
Distance to beach: 7500 Mts.
Useable Build Space: 148 Msq.
Beach: 7500 Meters
Storage / Trastero
Garden
Gated
Number of Parking Spaces: 1
Air Conditioning: Pre-Installed
Double Bedrooms: 2
Key Ready
Location: Rural, Urbanisation
Parking - Space
Terrace: 45 Msq.

Location

Ask for info

Contact with Costa Group Estates

Responsable del tratamiento: VDM ESTATES GROUP SL, Finalidad del tratamiento: Gestión y control de los servicios ofrecidos a través de la página Web de Servicios inmobiliarios, Envío de información a traves de newsletter y otros, Legitimación: Por consentimiento, Destinatarios: No se cederan los datos, salvo para elaborar contabilidad, Derechos de las personas interesadas: Acceder, rectificar y suprimir los datos, solicitar la portabilidad de los mismos, oponerse altratamiento y solicitar la limitación de éste, Procedencia de los datos: El Propio interesado, Información Adicional: Puede consultarse la información adicional y detallada sobre protección de datos Aquí.
WhatsApp