Fermer Fermer

Fuente Álamo · Las Palas Villa · Nouvelle construction

#Réf.: NB-31277
€ 242.000
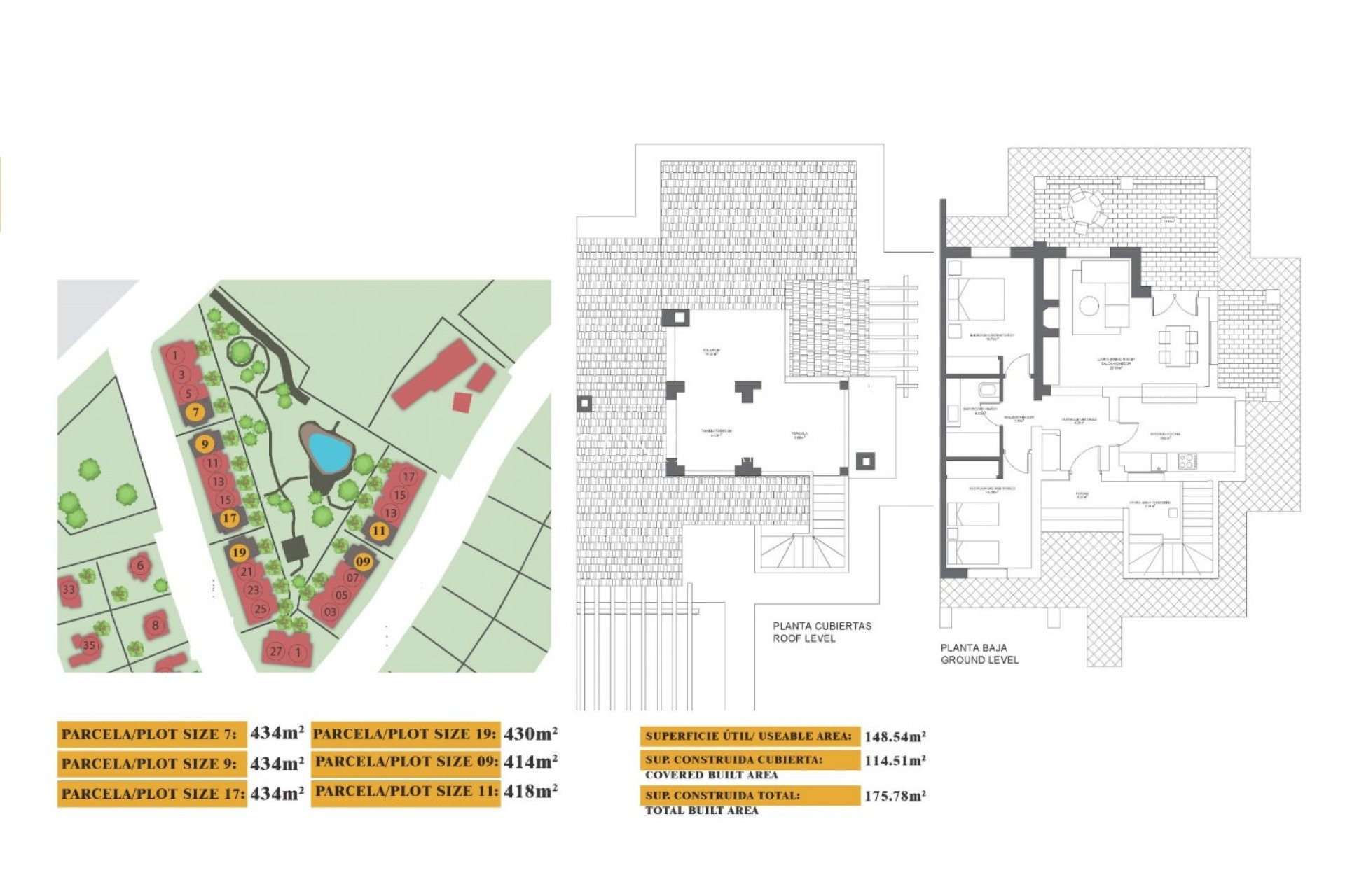
  • Construit 175m2
  • Intrigue 430m2
  • Chambres 2
  • Salles de bain 1

Fuente Álamo · Las Palas Villa · Nouvelle construction

La description

VILLA JUMELÉE PRÊTE À L'EMPLOI À FUENTE ALAMO, MURCIA

Les caractéristiques

Chambres: 2
Salles de bain: 1
Construit: 175m2
Utile: 148m2
Intrigue: 430m2
Distance à la plage: 7500 Mts.
Garden
Gated
Number of Parking Spaces: 1
Air Conditioning: Pre-Installed
Double Bedrooms: 2
Key Ready
Location: Rural, Urbanisation
Parking - Space
Terrace: 45 Msq.
Useable Build Space: 148 Msq.
Beach: 7500 Meters
Storage / Trastero

Emplacement

Demande d'information

Contact avec Costa Group Estates

Responsable del tratamiento: VDM ESTATES GROUP SL, Finalidad del tratamiento: Gestión y control de los servicios ofrecidos a través de la página Web de Servicios inmobiliarios, Envío de información a traves de newsletter y otros, Legitimación: Por consentimiento, Destinatarios: No se cederan los datos, salvo para elaborar contabilidad, Derechos de las personas interesadas: Acceder, rectificar y suprimir los datos, solicitar la portabilidad de los mismos, oponerse altratamiento y solicitar la limitación de éste, Procedencia de los datos: El Propio interesado, Información Adicional: Puede consultarse la información adicional y detallada sobre protección de datos Aquí.
WhatsApp