La Zenia Boulevard Shoppingcenter Orihuela Costa
La Zenia Boulevard, Calle Jade 2, Local 90 Alicante, Spain
+34 966 890 625 / +32 15 540 153
Marbella Golden Mile
Oasis Business Centre The Golden Mile
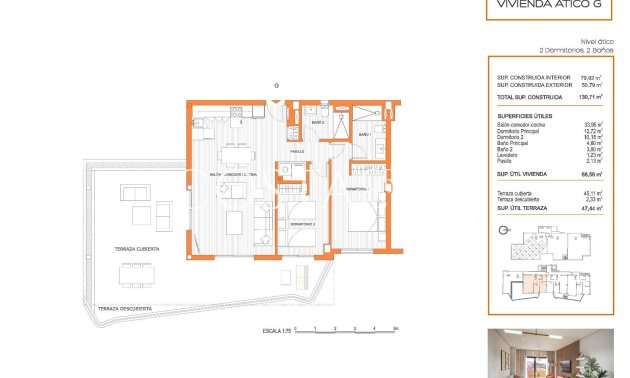
Nieuwbouwappartementen in Fuengirola – Modern wonen in Los Pacos, op slechts 2 km van het strand Welkom bij een nieuw woonproject met 15 hoogwaardige woningen in de gewilde wijk Los Pacos in Fuengirola, aan de Costa del Sol. Dit project is ontworpen met het oog op comfort, efficiëntie en modern wonen en biedt de perfecte balans tussen rust, voorzieningen en de nabijheid van het strand. Kies tussen begane grond met tuin, middelste verdiepingen met ruime terrassen of penthouses met privésolaria. Functionele en lichte woningen met privéparkeerplaats Deze nieuwe fase bestaat uit appartementen met 2 slaapkamers, 2 badkamers en een open woonruimte. Elke woning beschikt over: Een volledig ingerichte keuken met inbouwapparatuur Een ruime woon-eetkamer Volledig geïnstalleerde airconditioning. Warmwatervoorziening via aerothermisch systeem Privé parkeerplaats inbegrepen. Alle woningen zijn ontworpen om uw levenskwaliteit te verbeteren door slim gebruik van ruimte en materialen die energie-efficiëntie en weinig onderhoud garanderen. Uitstekende gemeenschappelijke voorzieningen Geniet van resort-achtige voorzieningen in het hart van Fuengirola, waaronder: Buitenzwembad en solarium Chill-out zone en aangelegde gemeenschappelijke ruimtes Volledig uitgeruste fitnessruimte, sauna en wasfaciliteiten Beveiligd complex met cameratoezicht en gecontroleerde toegang voor voetgangers en voertuigen Fotovoltaïsche zonnepanelen voor energiezuinige gemeenschappelijke ruimtes Deze voorzieningen maken het wooncomplex ideaal voor zowel permanent wonen als voor vakanties. Toplocatie in Los Pacos, Fuengirola Los Pacos is een gevestigde woonwijk die bekend staat om zijn multiculturele sfeer, groene ruimtes en gemakkelijke toegang tot dagelijkse voorzieningen. Op slechts 2 km van het strand en op 5 minuten lopen van het centrum van Los Pacos biedt de omgeving parken, scholen, sportfaciliteiten, winkels en restaurants. Afstanden tot de belangrijkste bezienswaardigheden: Strand van Fuengirola – 2 km Luchthaven van Málaga – 20 km Marbella – 30 km Treinstation Los Boliches – 2,5 km Mijas Golf – 8 km Haven van Fuengirola – 3,5 km Met uitstekende vervoersverbindingen, waaronder directe toegang tot de A-7, AP-7 en N-340, intercitybuslijnen en de Cercanías Renfe-treinlijn, is Los Pacos perfect verbonden met Málaga, Marbella en de rest van de Costa del Sol. Uw nieuwe thuis aan de Costa del Sol wacht op u Mis deze kans niet om een moderne, energiezuinige woning te kopen in een van de meest gewilde wijken van Fuengirola. Neem vandaag nog contact met ons op voor meer informatie of om een bezichtiging te regelen.
Deze informatie is hier onderhevig aan fouten en maakt geen deel uit van een contract. De aanbieding kan zonder kennisgeving worden gewijzigd of ingetrokken. Prijzen zijn exclusief aankoopkosten.
BIV No 514.440 / API No A227 / RAICV:2827 | Makelaar in Costa Blanca en Costa del Sol | Nederlandstalige Makelaar | CostaGroupEstates
La Zenia Boulevard Shoppingcenter Orihuela Costa
La Zenia Boulevard, Calle Jade 2, Local 90 Alicante, Spain
+34 966 890 625 / +32 15 540 153
Marbella Golden Mile
Oasis Business Centre The Golden Mile
Allereerst bedankt dat je contact met ons hebt opgenomen.
Allereerst bedankt dat je contact met ons hebt opgenomen.
We hebben een aanvraag voor een rapport ontvangen als u de prijs van het onroerend goed met de referentie verlaagt: NB-63671
Bekijk in de tussentijd eens een selectie van vergelijkbare woningen die voor u van belang kunnen zijn: