La Zenia Boulevard Shoppingcenter Orihuela Costa
La Zenia Boulevard, Calle Jade 2, Local 90 Alicante, Spain
+34 966 890 625 / +32 15 540 153
Marbella Golden Mile
Oasis Business Centre The Golden Mile
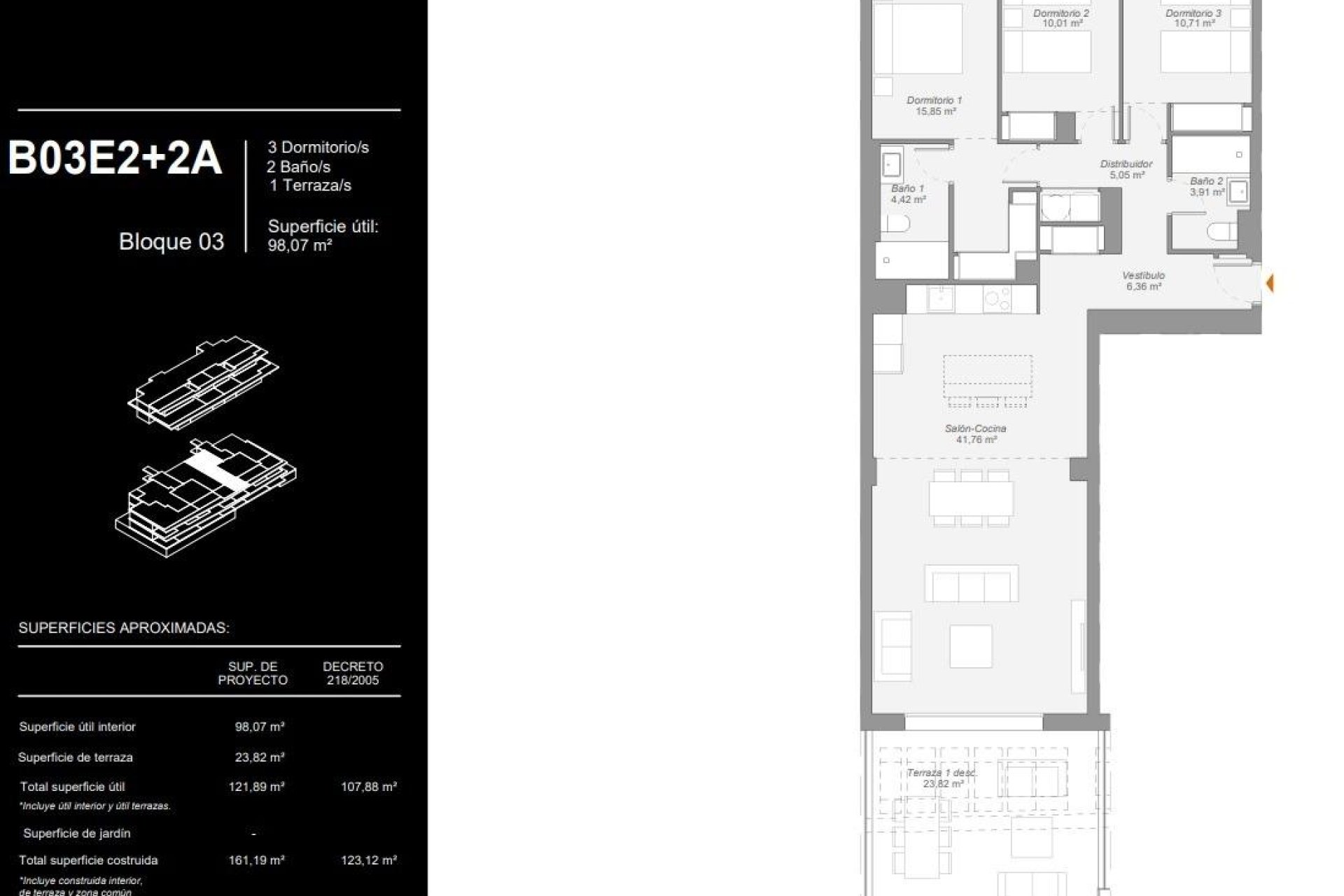
NIEUWBOUW WOONCOMPLEX IN ESTEPONA Een project dat uitkijkt over de zee en de bergen en waarvan de architectuur zich voegt in de omgeving om een eigen habitat te creëren, waar de zon en de Middellandse Zee het verstrijken van de tijd markeren. Het complex bestaat uit appartementen met 2 en 3 slaapkamers met grote terrassen, penthouses en appartementen op de begane grond met een tuin. Onder de zeer complete gemeenschappelijke faciliteiten moet een speciale vermelding worden gemaakt van de twee buitenzwembaden, de coworking-ruimte, een volledig uitgeruste fitnessruimte en een sauna met doucheruimte. Woning gelegen in Estepona, een van de meest aantrekkelijke hoeken van de Costa del Sol. De stad is uitgegroeid tot een van de meest gewilde plekken aan de Costa del Sol, dankzij de levenskwaliteit en het brede scala aan vrijetijds- en lifestyle-activiteiten. Toch blijft het trouw aan zijn wortels en zit het vol Andalusische charme. Een overvloed aan golfclubs van hoge kwaliteit in de omgeving rechtvaardigt waarom dit bekend staat als de "Costa del Golf. Het spectaculaire natuurlijke landschap is de ideale omgeving voor een verscheidenheid aan buitensporten, zowel op het land als op zee. Bovendien maakt het onovertroffen klimaat, beroemd om 325 dagen zon gemiddeld per jaar, samen met de beschutte ligging, deze stad tot een toonbeeld van levenskwaliteit in Spanje en Europa. Residential is uitstekend bereikbaar via de hoofdwegen van de provincie, waardoor het op slechts 10 minuten van Puerto Banus ligt en op minder dan 45 minuten van de luchthaven van Malaga. De kwaliteit van de stranden, hun diensten en fantastische toegankelijkheid zijn erkend met een recordaantal blauwe vlaggen.
Deze informatie is hier onderhevig aan fouten en maakt geen deel uit van een contract. De aanbieding kan zonder kennisgeving worden gewijzigd of ingetrokken. Prijzen zijn exclusief aankoopkosten.
BIV No 514.440 / API No A227 / RAICV:2827 | Makelaar in Costa Blanca en Costa del Sol | Nederlandstalige Makelaar | CostaGroupEstates
La Zenia Boulevard Shoppingcenter Orihuela Costa
La Zenia Boulevard, Calle Jade 2, Local 90 Alicante, Spain
+34 966 890 625 / +32 15 540 153
Marbella Golden Mile
Oasis Business Centre The Golden Mile
Allereerst bedankt dat je contact met ons hebt opgenomen.
Allereerst bedankt dat je contact met ons hebt opgenomen.
We hebben een aanvraag voor een rapport ontvangen als u de prijs van het onroerend goed met de referentie verlaagt: NB-40526
Bekijk in de tussentijd eens een selectie van vergelijkbare woningen die voor u van belang kunnen zijn: