La Zenia Boulevard Shoppingcenter Orihuela Costa
La Zenia Boulevard, Calle Jade 2, Local 90 Alicante, Spain
+34 966 890 625 / +32 15 540 153
Marbella Golden Mile
Oasis Business Centre The Golden Mile
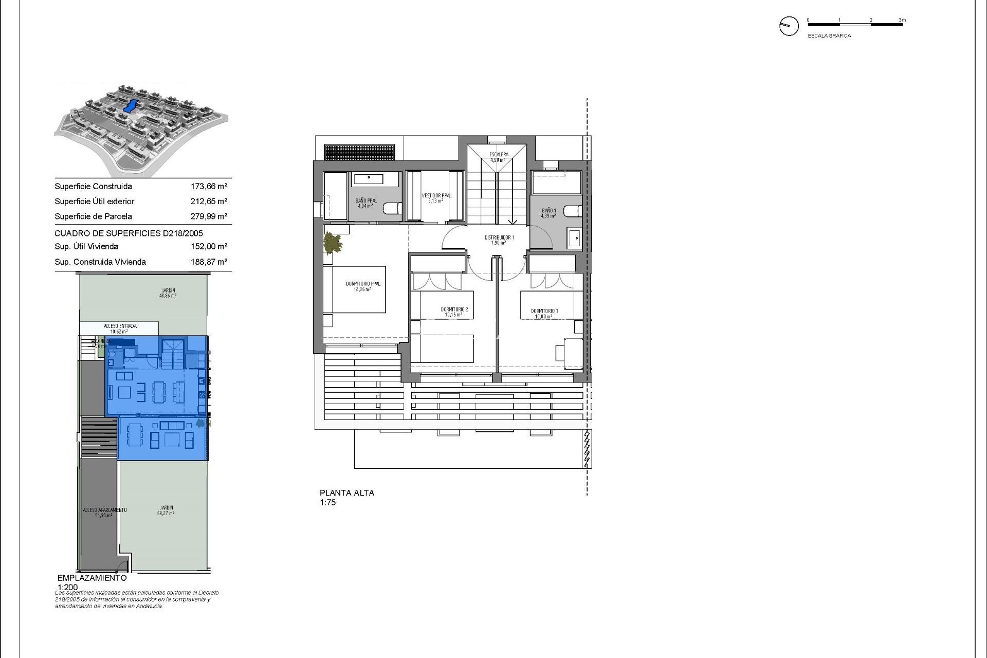
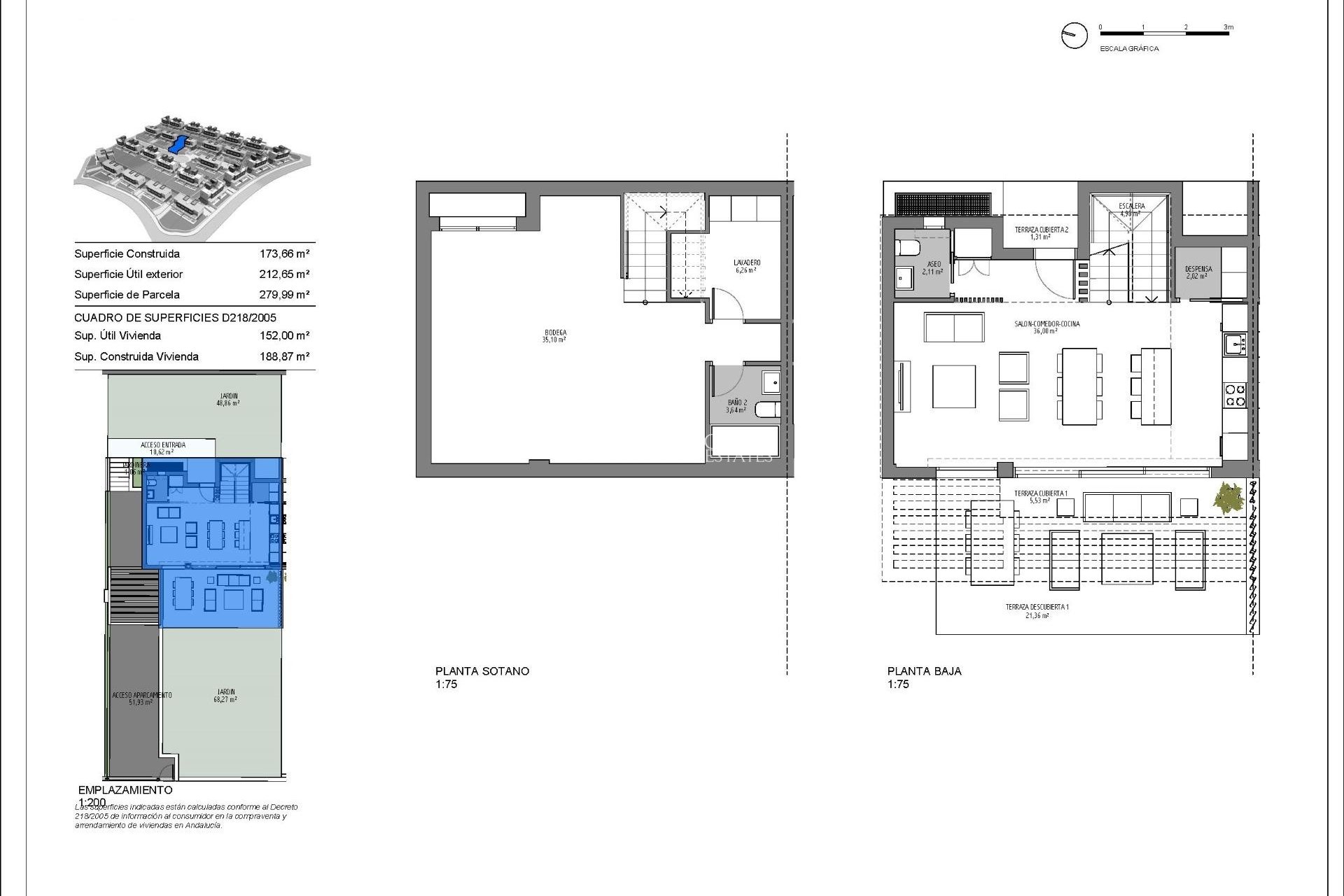
NIEUWBOUW HALFVRIJSTAANDE VILLA'S NABIJ ESTEPONA Nieuwbouw exclusief wooncomplex bestaande uit 50 geschakelde villa's in eigentijdse stijl, bestaande uit een grote woonkamer, open keuken voorzien van apparatuur van topmerken, 3 slaapkamers, 2 of 3 badkamers, gastentoilet, terras en tuin. Sommige hebben een privé solarium. De woningen genieten van een uitstekend uitzicht en oriëntatie om van de zon te genieten tot zonsondergang en prachtige gemeenschappelijke tuinen met twee zoutwaterzwembaden, waarvan een voor kinderen en met toegang tot het strand. De locatie, naast de Atalaya Golf & Country Club, dicht bij winkelstraten en met Puerto Banús op loopafstand, is ideaal voor gezinnen die op zoek zijn naar een onafhankelijk huis met een tuin zonder af te zien van goede verbindingen met de beste diensten aan de Costa del Sol.
Deze informatie is hier onderhevig aan fouten en maakt geen deel uit van een contract. De aanbieding kan zonder kennisgeving worden gewijzigd of ingetrokken. Prijzen zijn exclusief aankoopkosten.
BIV No 514.440 / API No A227 / RAICV:2827 | Makelaar in Costa Blanca en Costa del Sol | Nederlandstalige Makelaar | CostaGroupEstates
La Zenia Boulevard Shoppingcenter Orihuela Costa
La Zenia Boulevard, Calle Jade 2, Local 90 Alicante, Spain
+34 966 890 625 / +32 15 540 153
Marbella Golden Mile
Oasis Business Centre The Golden Mile
Allereerst bedankt dat je contact met ons hebt opgenomen.
Allereerst bedankt dat je contact met ons hebt opgenomen.
We hebben een aanvraag voor een rapport ontvangen als u de prijs van het onroerend goed met de referentie verlaagt: NB-25545
Bekijk in de tussentijd eens een selectie van vergelijkbare woningen die voor u van belang kunnen zijn: