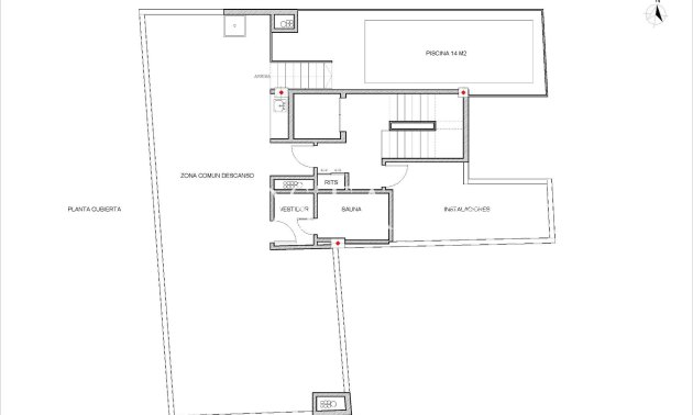
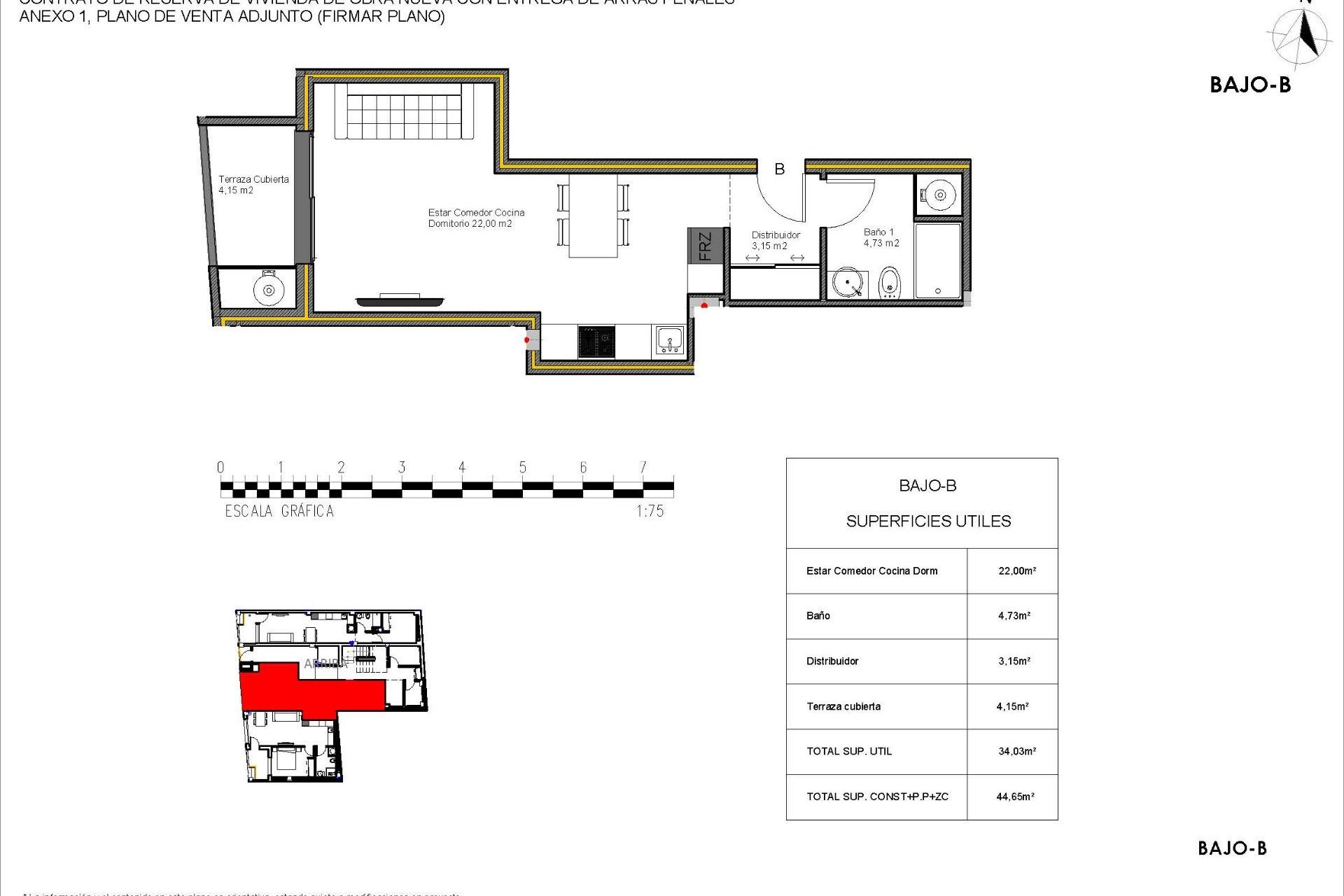
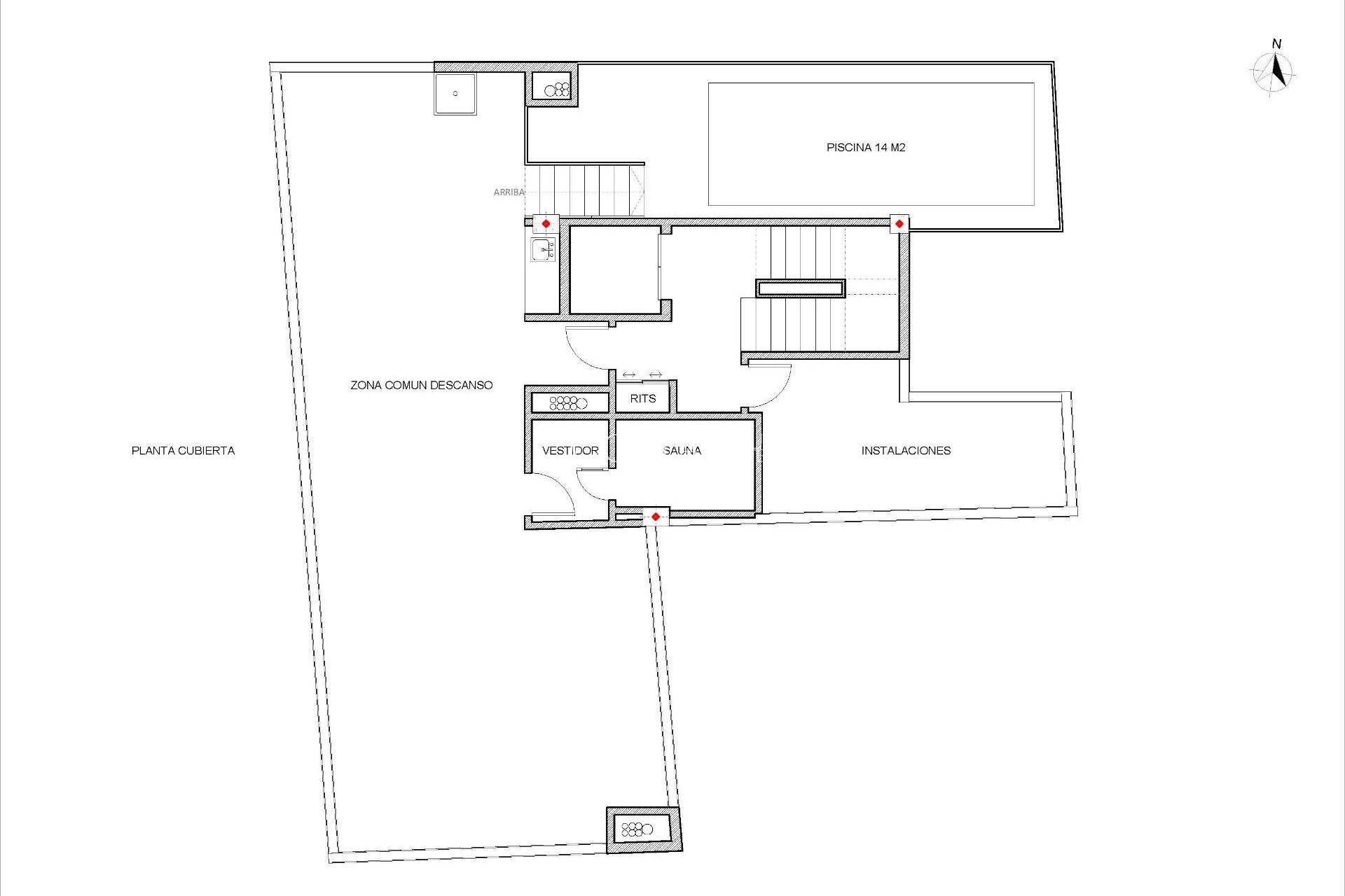
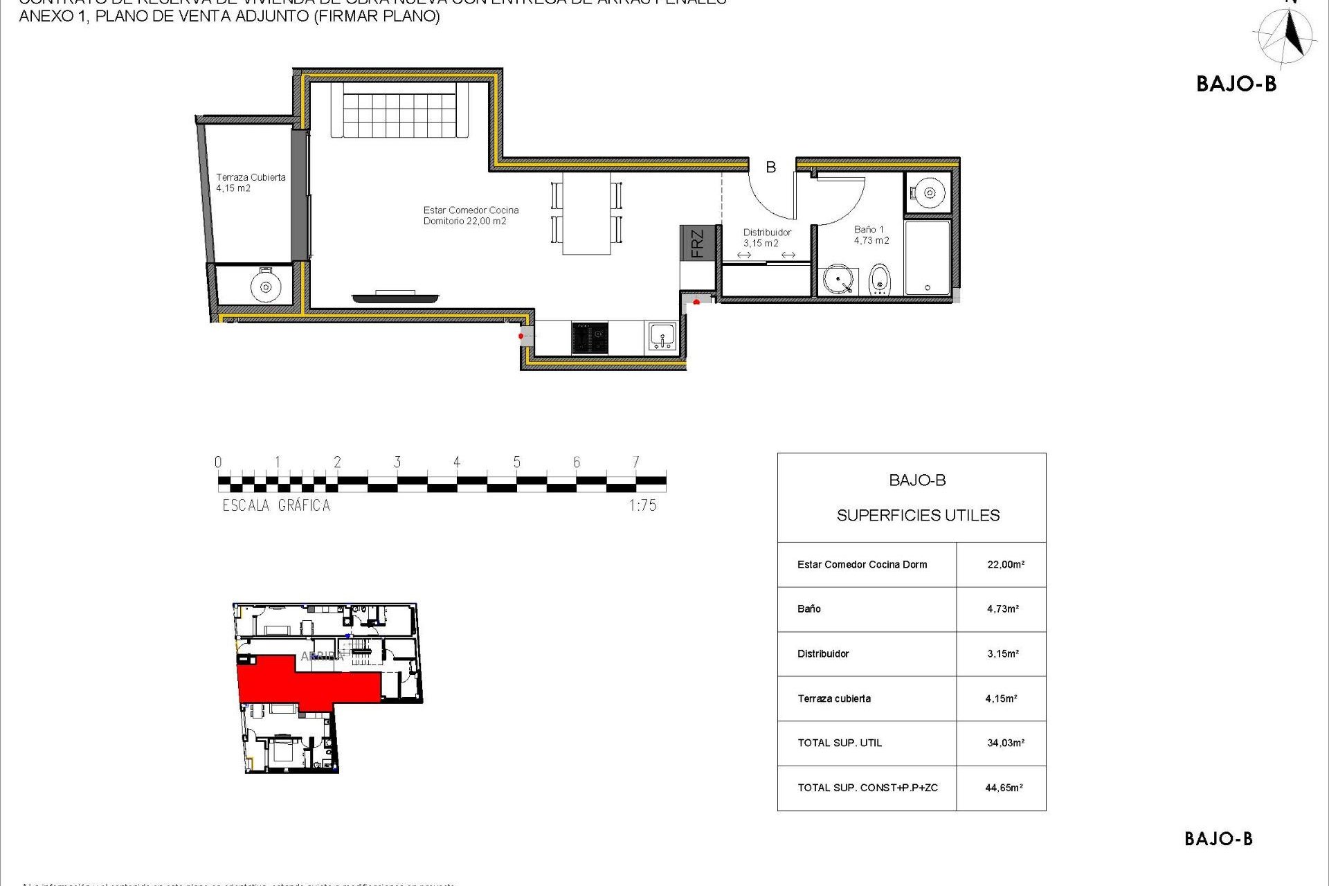
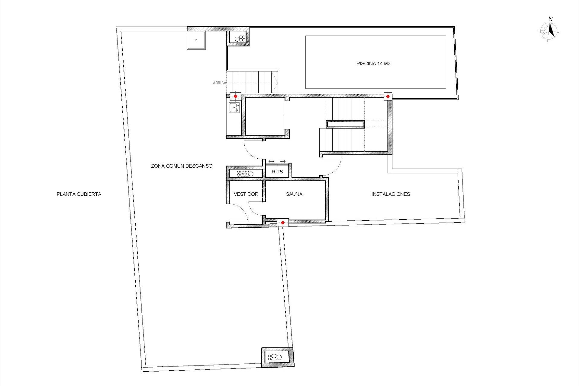
Nieuwbouwwoningen in Torrevieja, op slechts 600 meter van het strand Playa del Cura Toplocatie in het hart van Torrevieja Ontdek deze gloednieuwe appartementen en penthouses in een van de meest gewilde wijken van Torrevieja, op slechts 600 meter van het strand Playa del Cura en 400 meter van de boulevard. Deze levendige wijk ligt in het centrum van de stad en biedt alle essentiële voorzieningen op loopafstand, waaronder supermarkten, winkels, restaurants, cafés en openbaar vervoer. Torrevieja is een bekende kustplaats aan de Costa Blanca, beroemd om zijn milde mediterrane klimaat, levendige sfeer en het hele jaar door te genieten van het leven aan zee. Moderne appartementen met ruime indeling Dit exclusieve nieuwe project bestaat uit slechts 14 appartementen en penthouses, waaronder studio's en woningen met 1 of 2 slaapkamers, ontworpen om comfort, functionaliteit en een eigentijdse stijl te bieden. Alle woningen hebben een open keuken die in verbinding staat met de woon-eetkamer, uitgerust met apparatuur, waardoor een licht en uitnodigend interieur ontstaat. De slaapkamers hebben inbouwkasten en de badkamers zijn volledig uitgerust met meubilair, spiegels, vloerverwarming en doucheschermen. Hoogwaardige afwerking en energiezuinige voorzieningen De appartementen zijn gebouwd met hoogwaardige materialen en er is veel aandacht besteed aan energiezuinigheid. Het aluminium buitenschrijnwerk is voorzien van thermische onderbrekingstechnologie en dubbele beglazing voor thermische en akoestische isolatie. Gemotoriseerde zonwering zorgt voor extra comfort en veiligheid. Elke woning is voorzien van een voorinstallatie voor airconditioning en kanaalverwarming, versterkte toegangsdeuren, een verlichtingspakket en witgelakte binnendeuren. Warm water wordt geproduceerd door een aerothermisch systeem, waardoor het energieverbruik wordt verminderd en de duurzaamheid wordt verbeterd. Dakterras met gemeenschappelijk zwembad Bewoners kunnen genieten van een exclusief dakterras met gemeenschappelijk zwembad, barbecue, sauna en ligweide met ligstoelen, bereikbaar via een lift of trap. Deze privéruimte is perfect om te ontspannen, te zonnen en te genieten van een panoramisch uitzicht over de stad. Het biedt een rustig toevluchtsoord boven de drukke straten van Torrevieja en voegt aanzienlijke waarde toe aan het project. Levensstijl en omgeving van Torrevieja Torrevieja staat bekend om zijn uitgestrekte kustlijn, zandstranden en iconische zoutpannen. Het natuurpark Lagunas de La Mata y Torrevieja ligt op ongeveer 5 km afstand en biedt wandelpaden en unieke landschappen. Verschillende golfbanen, zoals Villamartin Golf en Las Colinas Golf, liggen tussen 12 en 18 km afstand. De jachthaven en haven van Torrevieja liggen op ongeveer 1 km afstand. De luchthaven van Alicante ligt op ongeveer 45 km afstand en de internationale luchthaven van Murcia ligt op ongeveer 65 km afstand, beide met uitstekende Europese verbindingen. Uw huis aan de kust wacht op u Mis deze kans niet om een modern, nieuw gebouwd appartement vlakbij het strand in Torrevieja te kopen. Neem vandaag nog contact met ons op voor meer informatie of om een privébezichtiging te regelen. 513