La Zenia Boulevard Shoppingcenter Orihuela Costa
La Zenia Boulevard, Calle Jade 2, Local 90 Alicante, Spain
+34 966 890 625 / +32 15 540 153
Marbella Golden Mile
Oasis Business Centre The Golden Mile
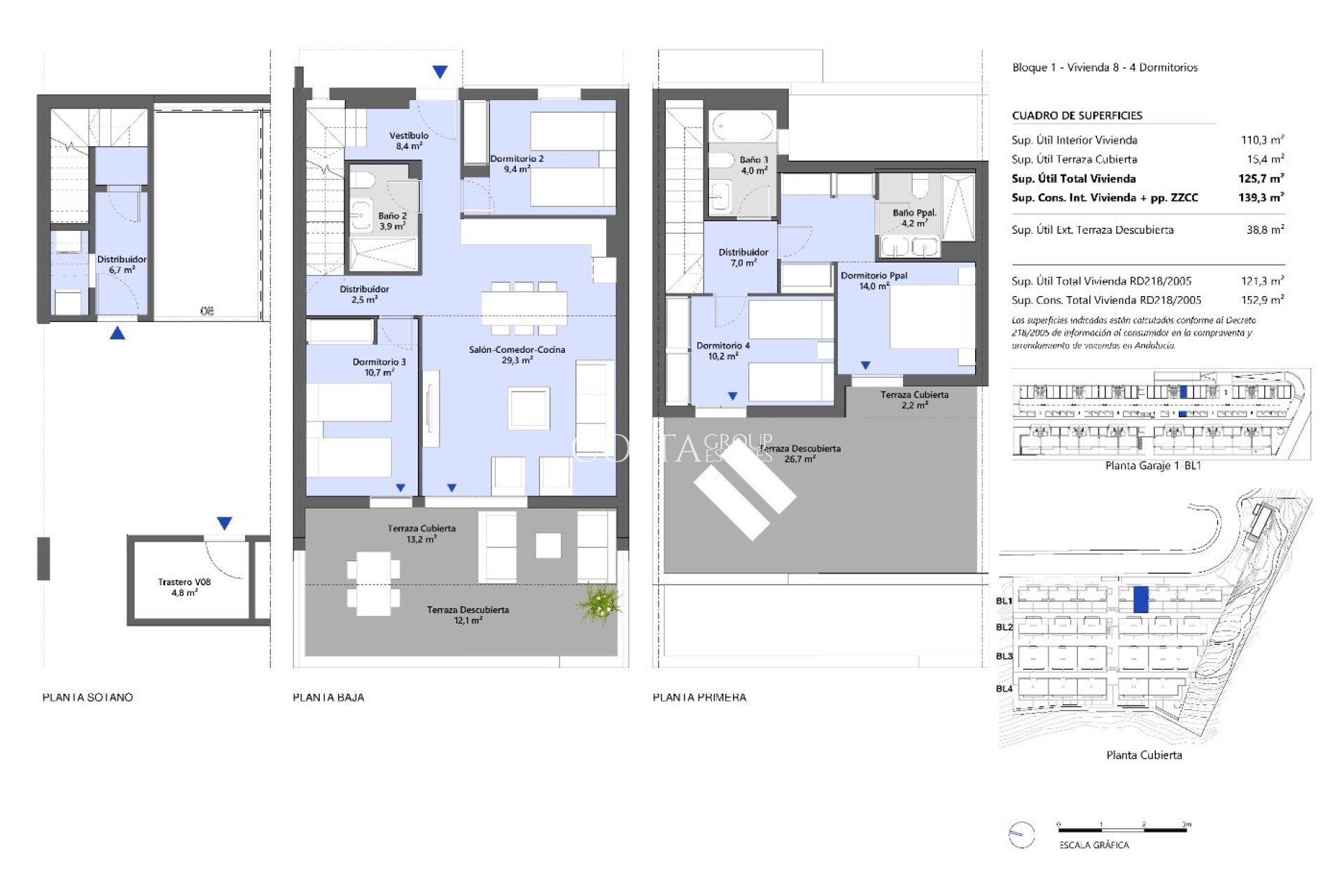
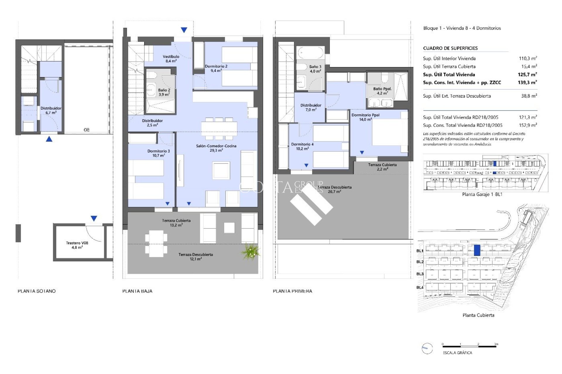
NIEUWBOUW HERENHUIZEN MET UITZICHT OP ZEE IN MANILVA Prachtige nieuwbouwwijk van 46 herenhuizen met 3 en 4 slaapkamers in Manilva. Huizen in vier rijen met uitzicht op zee. Alle woningen hebben een eigen garage voor optimaal gemak. Er is ook een extra ruimte met opslagruimtes. U kunt kiezen uit verschillende modellen met ruime terrassen, tuin en zuidwestelijke oriëntatie. De organisatie van de woning is gericht op de mensen die er wonen. Daarom hebben we veilige en vriendelijke gemeenschappelijke ruimtes gecreëerd die uitnodigen tot deelname aan activiteiten. Omgeven door prachtige mediterrane tuinen met toegang tot de natuurlijke omgeving met wandelgebieden en rustplaatsen, met een groot zwembad, gemeenschappelijke lounge, spa en fitnessruimte om alleen of in het gezelschap van familie en vrienden van te genieten. Ontworpen om te voldoen aan de uiteenlopende woonbehoeften van de hedendaagse gezinnen. Manilva is een kuststad in de provincie Malaga op de grens met de provincie Cadiz in de autonome gemeenschap Andalusië in Spanje. Manilva is een zeer toeristische stad, vooral in de zomer vanwege het goede klimaat en de sfeer. Het is een ideale bestemming voor toeristen die rust en kalmte zoeken, omringd door de zee. Villa's gelegen op 1 uur en 10 minuten rijden van de luchthaven van Malaga.
Deze informatie is hier onderhevig aan fouten en maakt geen deel uit van een contract. De aanbieding kan zonder kennisgeving worden gewijzigd of ingetrokken. Prijzen zijn exclusief aankoopkosten.
BIV No 514.440 / API No A227 / RAICV:2827 | Makelaar in Costa Blanca en Costa del Sol | Nederlandstalige Makelaar | CostaGroupEstates
La Zenia Boulevard Shoppingcenter Orihuela Costa
La Zenia Boulevard, Calle Jade 2, Local 90 Alicante, Spain
+34 966 890 625 / +32 15 540 153
Marbella Golden Mile
Oasis Business Centre The Golden Mile
Allereerst bedankt dat je contact met ons hebt opgenomen.
Allereerst bedankt dat je contact met ons hebt opgenomen.
We hebben een aanvraag voor een rapport ontvangen als u de prijs van het onroerend goed met de referentie verlaagt: NB-35943
Bekijk in de tussentijd eens een selectie van vergelijkbare woningen die voor u van belang kunnen zijn: