La Zenia Boulevard Shoppingcenter Orihuela Costa
La Zenia Boulevard, Calle Jade 2, Local 90 Alicante, Spain
+34 966 890 625 / +32 15 540 153
Marbella Golden Mile
Oasis Business Centre The Golden Mile
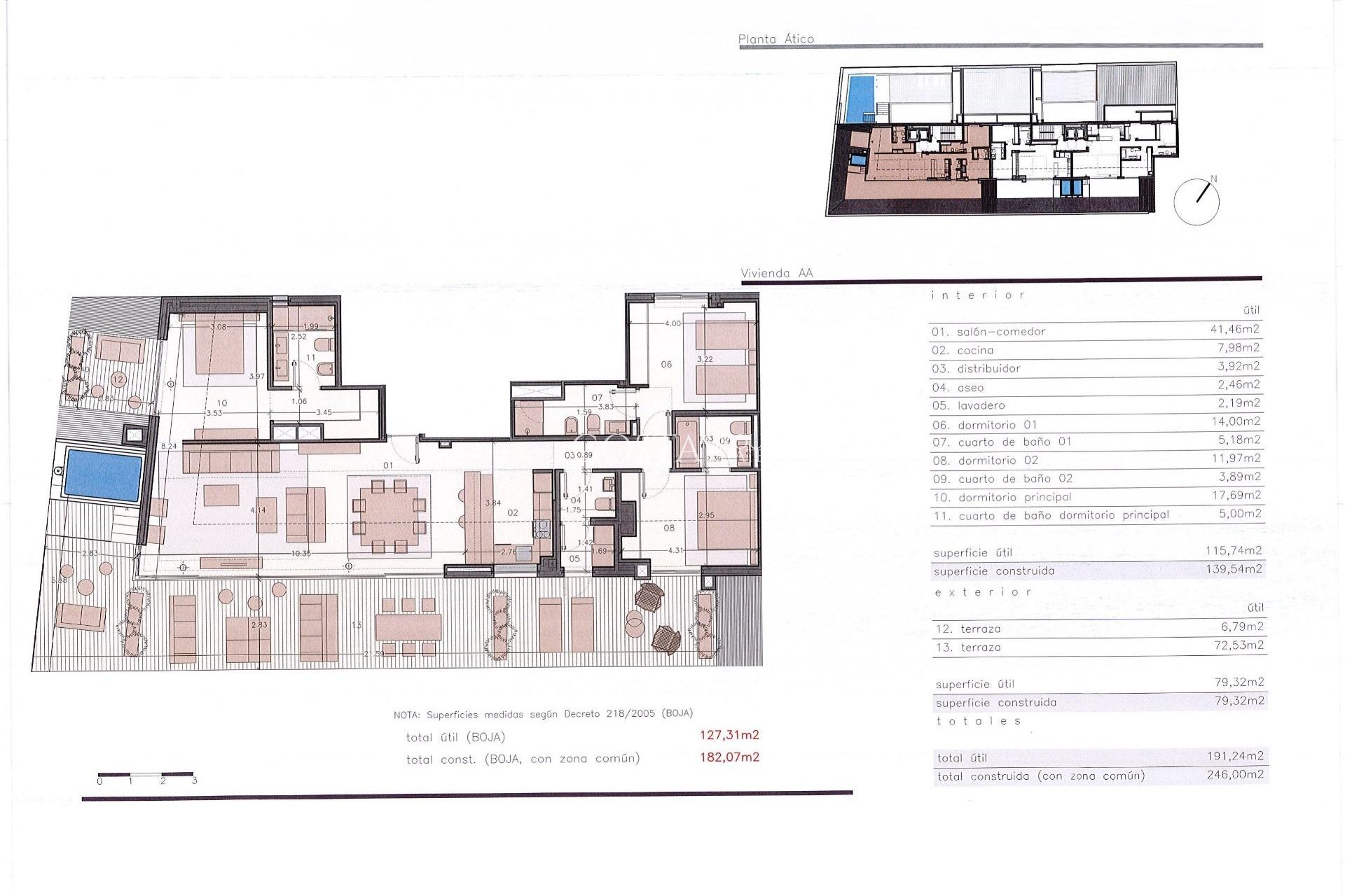
NIEUWBOUW WOONCOMPLEX IN FUENGIROLA Nieuwbouw wooncomplex zal bestaan uit 33 luxe appartementen en penthouses met de meest moderne uitrusting en de beste kwaliteiten op de markt. Het project is een moderne constructie ontworpen door het prestigieuze architectenbureau A0- project met een eigen stijl die een exclusief concept van levenskwaliteit weerspiegelt: actueel, elegant, stijlvol en in lijn met de nieuwste technologie, die het wonen tot een genot voor de zintuigen maken. Gelegen op slechts 350 meter van de zee. De elegante stijl maakt dit gebouw tot een voorbeeld van moderne architectuur waarin alles is ontworpen met het comfort van de bewoners in het achterhoofd. Het werd gecreëerd met de roeping om een emblematische constructie van Fuengirola en de hele Costa del Sol te worden. De tuinen, garages, zalen en doorgangen aan de buitenkant behouden de elegante en moderne stijl. Wonen in dit complex betekent genieten van vrije tijd, cultuur, diensten, rust en de mediterrane levensstijl zonder iets op te hoeven geven. Fuengirola, gelegen tussen Marbella en Malaga, is een van de meest levendige steden aan de Costa del Sol, een van de residentiële juweeltjes van het gebied en een stijgende waarde met een hoge levenskwaliteit.
Deze informatie is hier onderhevig aan fouten en maakt geen deel uit van een contract. De aanbieding kan zonder kennisgeving worden gewijzigd of ingetrokken. Prijzen zijn exclusief aankoopkosten.
BIV No 514.440 / API No A227 / RAICV:2827 | Makelaar in Costa Blanca en Costa del Sol | Nederlandstalige Makelaar | CostaGroupEstates
La Zenia Boulevard Shoppingcenter Orihuela Costa
La Zenia Boulevard, Calle Jade 2, Local 90 Alicante, Spain
+34 966 890 625 / +32 15 540 153
Marbella Golden Mile
Oasis Business Centre The Golden Mile
Allereerst bedankt dat je contact met ons hebt opgenomen.
Allereerst bedankt dat je contact met ons hebt opgenomen.
We hebben een aanvraag voor een rapport ontvangen als u de prijs van het onroerend goed met de referentie verlaagt: NB-33192
Bekijk in de tussentijd eens een selectie van vergelijkbare woningen die voor u van belang kunnen zijn: