Schließen Schließen

Estepona · Azata Golf Villa · Neue Gebäude

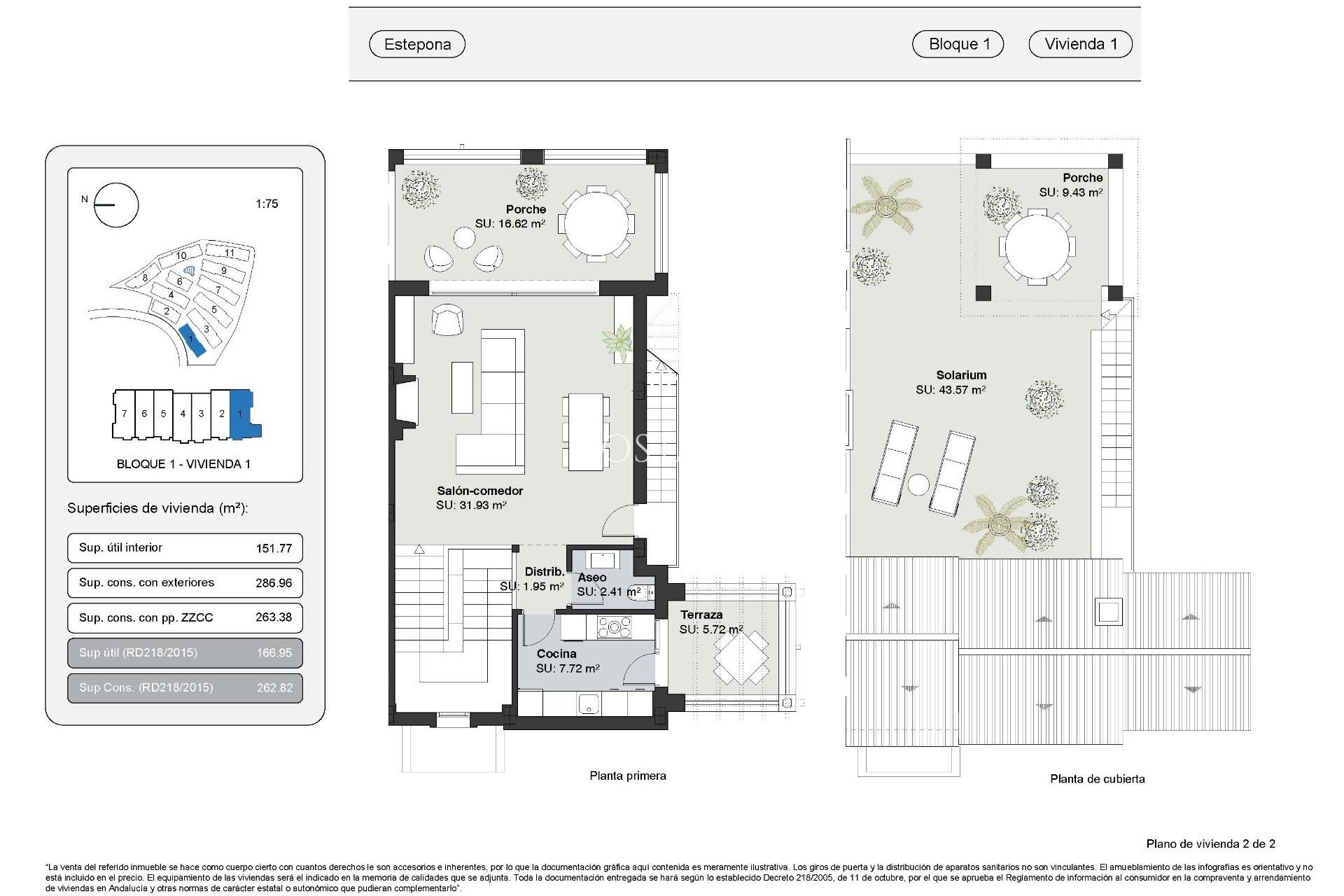
#Ref.: NB-17010
€ 556.225
  • Gebaut 262m2
  • Schlafzimmer 3
  • Das Badezimmer 2
  • Schwimmbad Ja

Estepona · Azata Golf Villa · Neue Gebäude

Beschreibung

Moderne mediterrane Häuser mit Meer- und Golfblick in Estepona, Costa del Sol

Charakteristik

Schlafzimmer: 3
Das Badezimmer: 2
Gebaut: 262m2
Nützlich: 166m2
Schwimmbad: Ja
Entfernung zum Strand: 2000 Mts.
Beach: 2000 Meters
Key Ready
Under-Build / Basement
Terrace: 80 Msq.
Parking - Space
Useable Build Space: 166 Msq.
Storage / Trastero
Toilet: 1
Communal Pool
Gated
Solarium: Yes
Number of Parking Spaces: 1
Near Golf / Golf Resort Property
Location: Coastal, Urbanisation
Air Conditioning: Pre-Installed
Near Schools
Near Commercial Center
Double Bedrooms: 3
Gym
Near Bus Route
Views: Sea

Ort

Nach Informationen fragen

Kontakt mit Costa Group Estates

Responsable del tratamiento: VDM ESTATES GROUP SL, Finalidad del tratamiento: Gestión y control de los servicios ofrecidos a través de la página Web de Servicios inmobiliarios, Envío de información a traves de newsletter y otros, Legitimación: Por consentimiento, Destinatarios: No se cederan los datos, salvo para elaborar contabilidad, Derechos de las personas interesadas: Acceder, rectificar y suprimir los datos, solicitar la portabilidad de los mismos, oponerse altratamiento y solicitar la limitación de éste, Procedencia de los datos: El Propio interesado, Información Adicional: Puede consultarse la información adicional y detallada sobre protección de datos Aquí.
WhatsApp