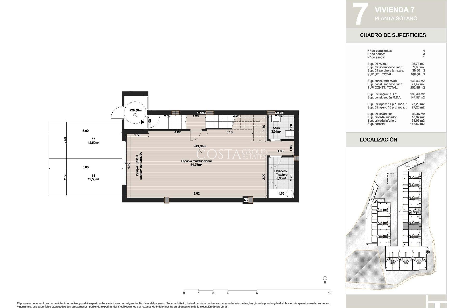
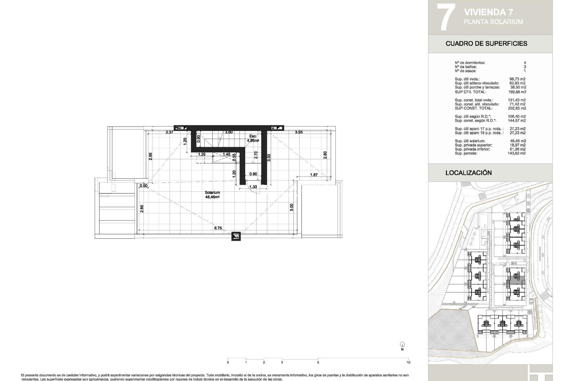
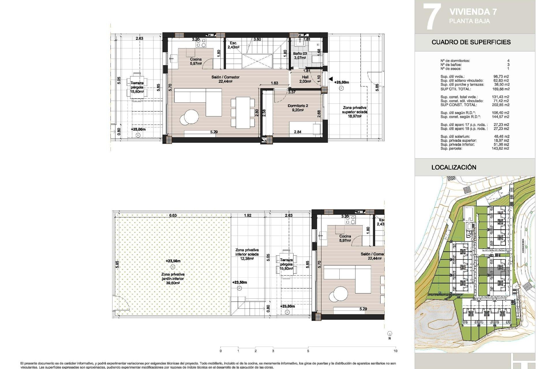
Nowe domy szeregowe z 4 sypialniami w Torre del Mar, zaledwie 800 m od plaży Nowoczesne domy rodzinne na Costa del Sol Ta ekskluzywna inwestycja mieszkaniowa składa się z 21 nowoczesnych domów szeregowych z 4 sypialniami, położonych w Torre del Mar, jednym z najbardziej pożądanych nadmorskich obszarów regionu Axarquia na Costa del Sol. Te przestronne domy, położone zaledwie 800 metrów od plaży, są idealnym rozwiązaniem dla rodzin poszukujących komfortu, możliwości spędzania czasu na świeżym powietrzu i bliskości morza. Torre del Mar słynie z długich piaszczystych plaż, tętniącej życiem promenady, doskonałej gastronomii i całorocznych usług. Miasto oferuje idealną równowagę między spokojnym życiem nad morzem a nowoczesną infrastrukturą, z łatwo dostępnymi szkołami, ośrodkami zdrowia, centrami handlowymi i obiektami sportowymi. Przestronny układ na czterech poziomach z prywatnym solarium Każdy dom szeregowy ma trzy główne piętra oraz prywatne solarium na dachu o powierzchni około 48 m2, oferujące przestronne wnętrza i powierzchnie zewnętrzne. W piwnicy znajduje się prywatny parking na dwa samochody, wielofunkcyjne pomieszczenie z naturalnym oświetleniem, które może służyć jako pokój gier, gabinet lub dodatkowa sypialnia, pralnia i toaleta dla gości. Na parterze otwarta część dzienna z kuchnią łączy się bezpośrednio z frontowym tarasem i prywatnym ogrodem. Na tym poziomie znajduje się również jedna sypialnia i w pełni wyposażona łazienka, co czyni go idealnym miejscem dla gości lub wielopokoleniowego życia. Dodatkowy tylny taras zapewnia dodatkową przestrzeń zewnętrzną. Na pierwszym piętrze znajdują się trzy dodatkowe sypialnie i dwie łazienki, z których jedna jest łazienką przy sypialni, a także dwa tarasy z przodu i z tyłu nieruchomości. Specyfikacje jakościowe i efektywność energetyczna Te nowo wybudowane domy są dostarczane z wysokiej jakości wykończeniami i nowoczesnymi instalacjami, w tym: Wyposażona kuchnia z ceramiczną płytą grzejną, zlewem i okapem W pełni zainstalowana klimatyzacja kanałowa System aerotermiczny do podgrzewania wody Łazienki z meblami, lustrami i kabinami prysznicowymi Elektryczne rolety w salonie i sypialniach System wideodomofonowy Kompleks mieszkaniowy posiada również ogrody krajobrazowe i wspólny basen dla mieszkańców. Doskonała lokalizacja w pobliżu plaży, pola golfowego i miasta Malaga Osiedle znajduje się zaledwie 4 km od pola golfowego Baviera Golf i 30 km od centrum miasta Malaga, z bezpośrednim dostępem do autostrady A7. Odległości do najważniejszych punktów Plaża 0,8 km Baviera Golf 4 km Miasto Malaga 30 km Lotnisko w Maladze 45 km Vélez Málaga 5 km Twój idealny dom nad morzem w Torre del Mar Te nowoczesne kamienice oferują przestrzeń, jakość i bezkonkurencyjną lokalizację w pobliżu plaży. Skontaktuj się z nami już dziś, aby uzyskać więcej informacji lub umówić się na oglądanie tej wyjątkowej nowej inwestycji w Torre del Mar. 513