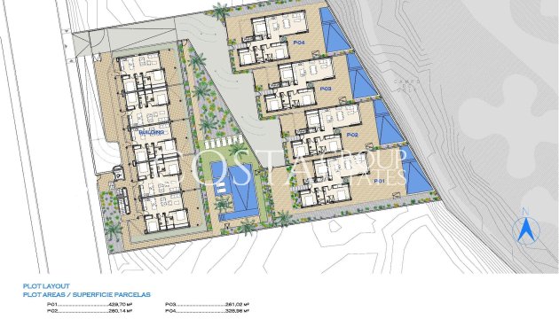
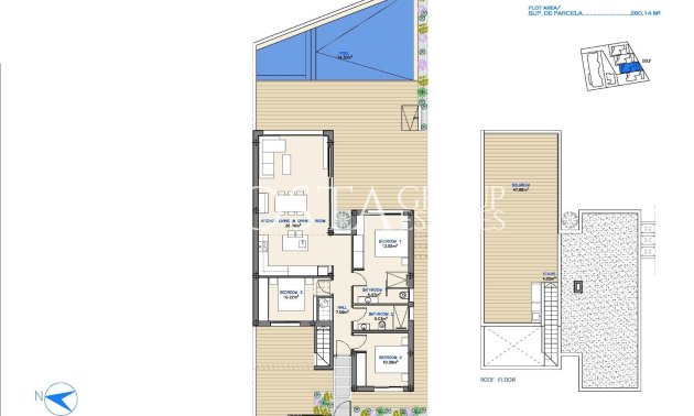
Nowe wille z widokiem na pole golfowe w Los Alcázares, Costa Cálida Ekskluzywne mieszkanie w pobliżu plaży i pola golfowego Ta nowa inwestycja mieszkaniowa w Los Alcázares oferuje wyjątkową okazję do cieszenia się nowoczesnym stylem życia w jednej z najbardziej pożądanych lokalizacji na Costa Cálida. Położona zaledwie 1,2 km od plaży i bezpośrednio przy prestiżowym polu golfowym La Serena, inwestycja łączy w sobie życie nad morzem z spokojem kurortu golfowego. Urokliwe centrum miasta Los Alcázares znajduje się w odległości spaceru, zapewniając łatwy dostęp do sklepów, restauracji, kawiarni i niezbędnych usług. Doskonała lokalizacja z doskonałym połączeniem komunikacyjnym Los Alcázares to idealne miejsce dla osób pragnących zainwestować w nową nieruchomość nad Morzem Śródziemnym. Obszar ten znajduje się zaledwie 25 minut od lotniska w Murcji i około 55 minut od lotniska w Alicante. Dzięki doskonałym połączeniom autostradowym mieszkańcy mogą szybko dotrzeć do pobliskich miast, takich jak Kartagena (20 km), Murcja (40 km) i Alicante (80 km), a także do innych pięknych plaż wzdłuż Costa Cálida i Costa Blanca. Apartamenty i wille zaprojektowane z myślą o komforcie Inwestycja obejmuje 13 nowoczesnych apartamentów z 2, 3 lub 4 sypialniami oraz 4 ekskluzywne, parterowe wille z 3 sypialniami, położone w pierwszej linii przy polu golfowym. Każda nieruchomość łączy w sobie nowoczesny design z wysokiej jakości wykończeniem i funkcjonalnym rozkładem pomieszczeń. Wille oferują prywatne działki z ogrodami i basenami, a także opcję prywatnego solarium, które stanowi dodatkowy akcent luksusu. Wszystkie domy mają imponujący widok na pole golfowe i Mar Menor. Wysokiej jakości wyposażenie Każdy dom został zaprojektowany z myślą o stylu i komforcie. Najważniejsze cechy to: W pełni wyposażone łazienki z meblami i kabinami prysznicowymi Wstępna instalacja klimatyzacji kanałowej Zasłony z napędem elektrycznym w sypialniach Prywatny basen Parking na działce Golf i nadmorski styl życia Położona na polu golfowym La Serena, znanym z bujnej roślinności i przeszkód wodnych na 16 z 18 dołków, inwestycja ta jest rajem dla miłośników golfa. Jednocześnie mieszkańcy mogą cieszyć się bezpośrednim dostępem pieszym do centrum miasta Los Alcázares i ciepłych wód Mar Menor, największej słonej laguny w Europie. Dzięki spokojnym falom, drobnemu piaskowi i idealnym warunkom do żeglowania, pływania i uprawiania sportów wodnych, okolica ta jest idealna zarówno do relaksu, jak i przygody. Twój śródziemnomorski dom czeka Niezależnie od tego, czy jesteś entuzjastą golfa, miłośnikiem sportów wodnych, czy po prostu szukasz spokojnego miejsca na wybrzeżu, te nowo wybudowane wille w Los Alcázares oferują idealną równowagę między luksusem, naturą i stylem życia. Skontaktuj się z nami już dziś, aby umówić się na wizytę i zapewnić sobie nowy dom na Costa Cálida.