Fermer Fermer

San Pedro De Alcantara · Marbella West Apartments · Nouvelle construction

#Réf.: NB-56907
€ 590.000
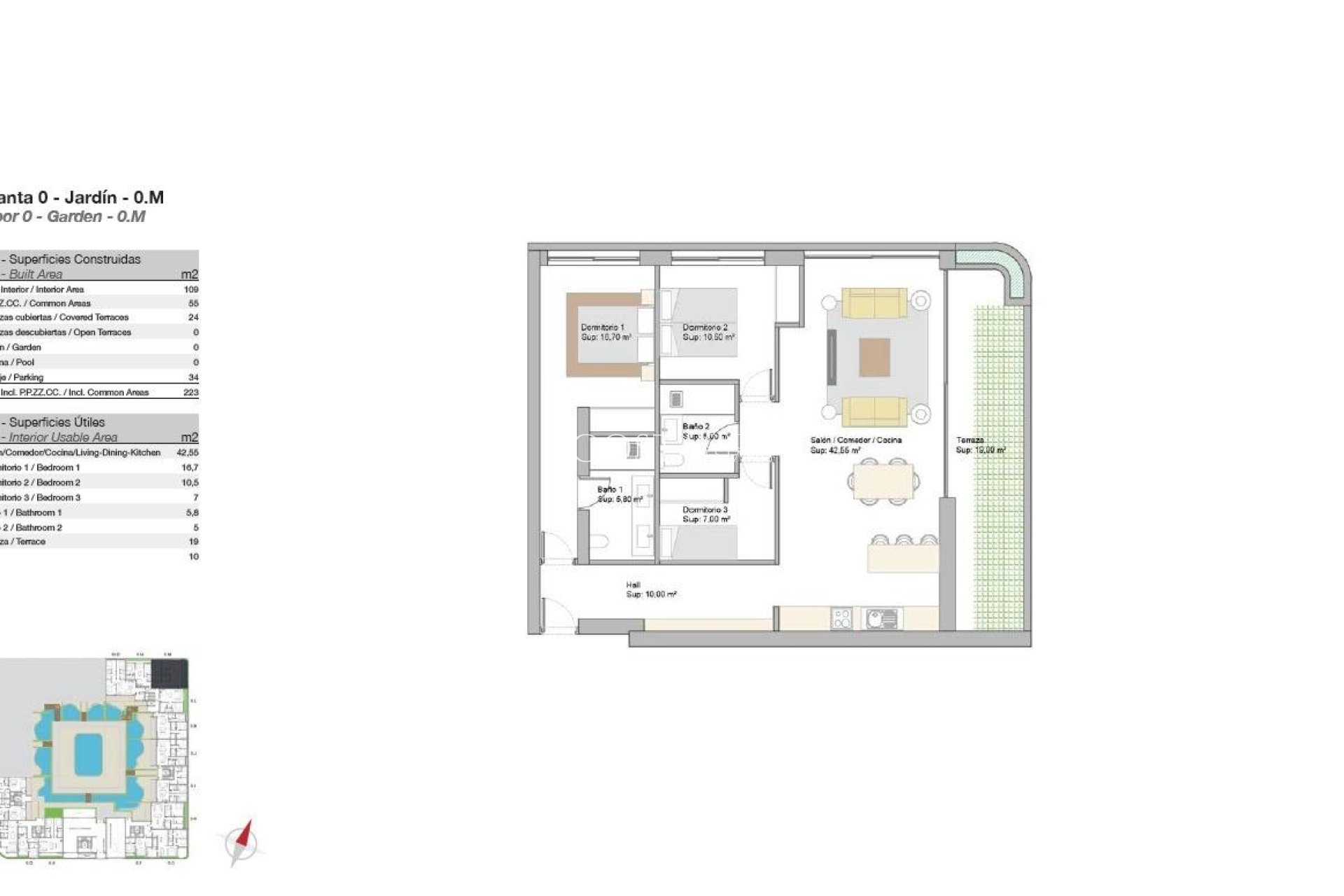
  • Construit 109m2
  • Intrigue 17m2
  • Chambres 3
  • Salles de bain 2
  • Piscine Oui

San Pedro De Alcantara · Marbella West Apartments · Nouvelle construction

La description

Appartements neufs de luxe à Marbella Ouest – Une vie élégante en bord de mer près de Puerto Banús

Les caractéristiques

Chambres: 3
Salles de bain: 2
Construit: 109m2
Utile: 95m2
Intrigue: 17m2
Piscine: Oui
Distance à la plage: 1400 Mts.
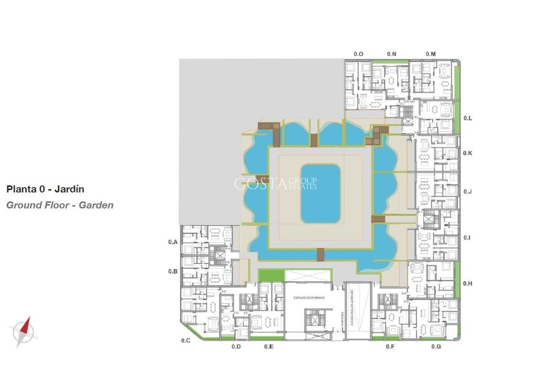
Communal Pool
Garden
Gated
Number of Parking Spaces: 1
Location: Coastal, Urbanisation
Near Schools
Near Commercial Center
Elevator/Lift
Useable Build Space: 95 Msq.
Double Bedrooms: 3
Gym
Near Bus Route
Terrace: 19 Msq.
Beach: 1400 Meters
Parking - Space

Emplacement

Demande d'information

Contact avec Costa Group Estates

Responsable del tratamiento: VDM ESTATES GROUP SL, Finalidad del tratamiento: Gestión y control de los servicios ofrecidos a través de la página Web de Servicios inmobiliarios, Envío de información a traves de newsletter y otros, Legitimación: Por consentimiento, Destinatarios: No se cederan los datos, salvo para elaborar contabilidad, Derechos de las personas interesadas: Acceder, rectificar y suprimir los datos, solicitar la portabilidad de los mismos, oponerse altratamiento y solicitar la limitación de éste, Procedencia de los datos: El Propio interesado, Información Adicional: Puede consultarse la información adicional y detallada sobre protección de datos Aquí.
WhatsApp