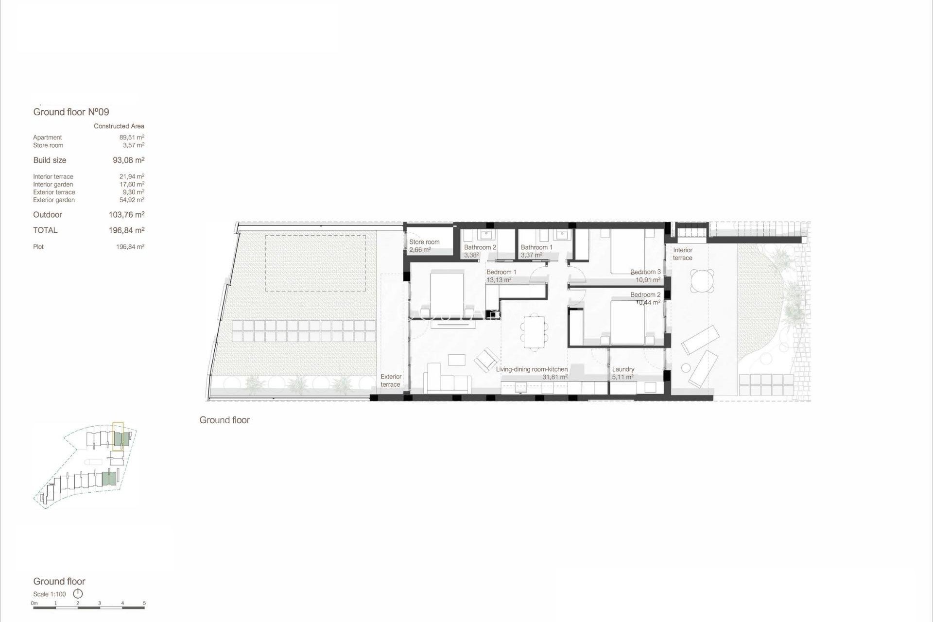
NEW BUILD BUNGALOWS IN RODA GOLF New Build residential complex located on a south-facing plot inside the prestigious Roda Golf & Beach Resort, bordering the course with its manicured fairways and feature lakes. This beautiful complex comprises 37 spacious homes surrounding a stunning pool and communal gardens. This modern residential offers a range of property types, views and orientations, according to your requirements. All bungalow apartments boast 3 double bedrooms, 2 bathrooms, a light and spacious open-plan living-dining room with American kitchen and fantastic outside space. All include off-road parking and a private storeroom. The 18 ground floor bungalows enjoy an interior terrace and garden which lead out to the communal gardens and pool area, as well as a large, gated rear terrace and garden. The 18 penthouses include a front balcony off the living room, as well as a fantastic, 90m2 private roof solarium with summer kitchen. Residential complex has been designed to maximise the use of space and light. Superbly built and including a wide range of extras, this exclusive promotion is a real oasis on Spain´s Costa Calida. At the heart of the development lies a stunning communal pool area, surrounded by Mediterranean vegetation. Enjoying sun all day long thanks to its south facing orientation, it is the perfect place to swim, relax and soak up the Murcian sunshine. As well as enjoying fantastic inside space, the ground floor properties boast a beautiful front terrace plus additional, private garden that leads out into the interior of the development with its stunning communal gardens and pool area. In addition, they offer a back terrace and enclosed garden for maximum privacy, with a gate that leads out to the exterior of the urbanisation. The duel orientation ensures that the homes enjoy sun and shade all day long. A beautifully maintained, Dave Thomas designed 18 hole course with lakes, strategically placed bunkers, undulating greens and lush Mediterranean vegetation. A private resort with 24 hour security, its own taxi rank, a stunning club house with a la carte restaurant, gym with lake views and sports area. And all this just a stroll or cycle ride away from the beaches and tranquil waters of the Mar Menor inland lagoon. This residential has a fantastic selection of golden sandy beaches on its doorstep, as well as a a wide range of watersports. Enjoy both the Mar Menor and the Mediterranean seas from this paradise on the Murcian coastline.