Close Close
Costa Group Estates

La Zenia Boulevard Shoppingcenter Orihuela Costa

La Zenia Boulevard, Calle Jade 2, Local 90 Alicante, Spain

+34 966 890 625 / +32 15 540 153

Marbella Golden Mile

Oasis Business Centre The Golden Mile

+34 966 890 625 / +34 643 057 719

info@costagroupestates.com

Aspe · Poligono 19 Villa · New Build

#Ref: NB-69638
€ 460.000
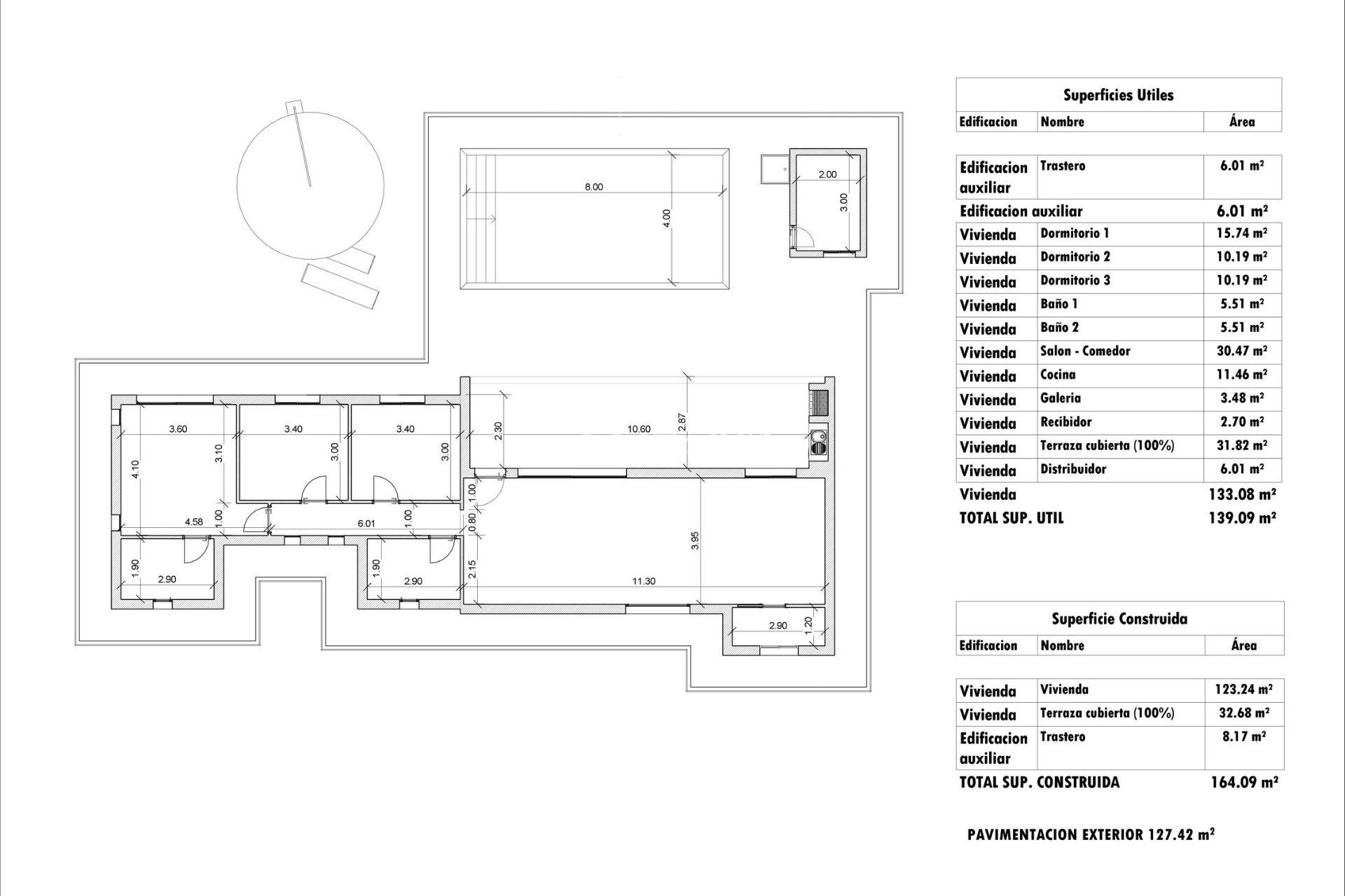
  • Built 164m2
  • Plot 13.172m2
  • Bedrooms 3
  • Bathrooms 2
  • Pool Yes

Aspe · Poligono 19 Villa · New Build

Description

Newly built villas located in the municipality of Aspe.

Features

Bedrooms: 3
Bathrooms: 2
Built: 164m2
Usable: 139m2
Plot: 13.172m2
Pool: Yes
Distance to beach: 25000 Mts.
Terrace: 32 Msq.
Beach: 25000 Meters
Parking - Space
Useable Build Space: 139 Msq.
Location: Mountain
Storage / Trastero
Garden
Gated
Number of Parking Spaces: 1
Air Conditioning: Pre-Installed
Near Schools
Double Bedrooms: 3
Private Pool

Location

Ask for info

Contact with Costa Group Estates

Responsable del tratamiento: VDM ESTATES GROUP SL, Finalidad del tratamiento: Gestión y control de los servicios ofrecidos a través de la página Web de Servicios inmobiliarios, Envío de información a traves de newsletter y otros, Legitimación: Por consentimiento, Destinatarios: No se cederan los datos, salvo para elaborar contabilidad, Derechos de las personas interesadas: Acceder, rectificar y suprimir los datos, solicitar la portabilidad de los mismos, oponerse altratamiento y solicitar la limitación de éste, Procedencia de los datos: El Propio interesado, Información Adicional: Puede consultarse la información adicional y detallada sobre protección de datos Aquí.
WhatsApp