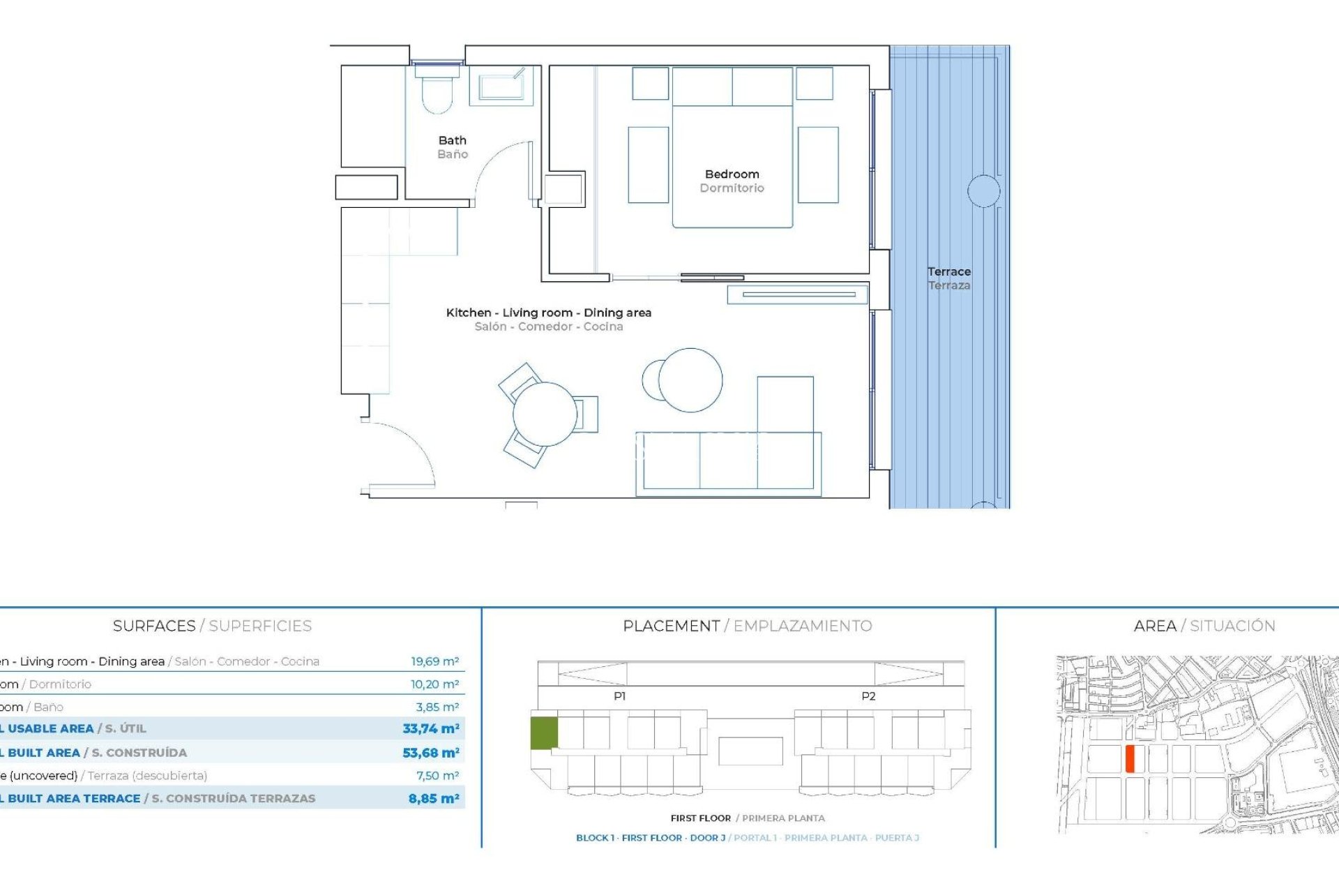
Modern One-Bedroom Apartments in Mijas Costa – Comfort, Style and Great Value Contemporary Living in Las Lagunas, Mijas Costa Discover an exciting new development of 116 stylish one-bedroom apartments located in Las Lagunas, Mijas Costa—one of the most dynamic and up-and-coming areas on the Costa del Sol. This location offers the perfect balance between residential tranquility and urban convenience, with all essential services just minutes away. Residents benefit from close proximity to shopping centers, schools, health clinics, sports facilities and a wide selection of restaurants. Smart Design and Functional Spaces Designed with contemporary living in mind, these apartments offer open-concept layouts that maximize both space and comfort. The bright interiors feature natural materials and warm tones, creating a cozy and inviting atmosphere. The living room, kitchen and bedroom flow together in a seamless, harmonious design, with the terrace serving as a natural extension of the interior space—ideal for enjoying the Mediterranean light and outdoor living all year round. Choose from ground or intermediate floors with terraces, or penthouses with expansive private terraces perfect for sunbathing or entertaining. Each apartment includes: Fully furnished kitchen with appliances Air conditioning system via ductwork One private parking space included Premium Amenities for a Balanced Lifestyle The development is built around a central community pool with a tropical-style chill-out bar, offering the perfect setting for relaxation and socializing. There’s also a dedicated barbecue area for gatherings with family and friends. Residents will also enjoy access to a fully equipped gym, supporting a healthy and active lifestyle without leaving home. For professionals or students, a co-working space provides a modern and practical environment for remote work or study, reinforcing the commitment to a lifestyle where comfort, leisure and productivity coexist. Key distances: Beaches of Mijas Costa: 2 km Miramar Shopping Centre: 1 km Fuengirola town centre: 4 km Chaparral Golf Club: 5 km Málaga-Costa del Sol Airport: 25 km Marbella: 25 km Invest in the Heart of the Costa del Sol This residential project represents a unique opportunity for first-time buyers, investors or retirees looking for a well-connected, vibrant community with excellent amenities and value. Whether as a home or a rental investment, these modern apartments in Mijas Costa are designed to adapt to today's way of life. Contact us today and secure your place in one of the most promising areas of the Costa del Sol.