Close Close
Costa Group Estates

La Zenia Boulevard Shoppingcenter Orihuela Costa

La Zenia Boulevard, Calle Jade 2, Local 90 Alicante, Spain

+34 966 890 625 / +32 15 540 153

Marbella Golden Mile

Oasis Business Centre The Golden Mile

+34 966 890 625 / +34 643 057 719

info@costagroupestates.com

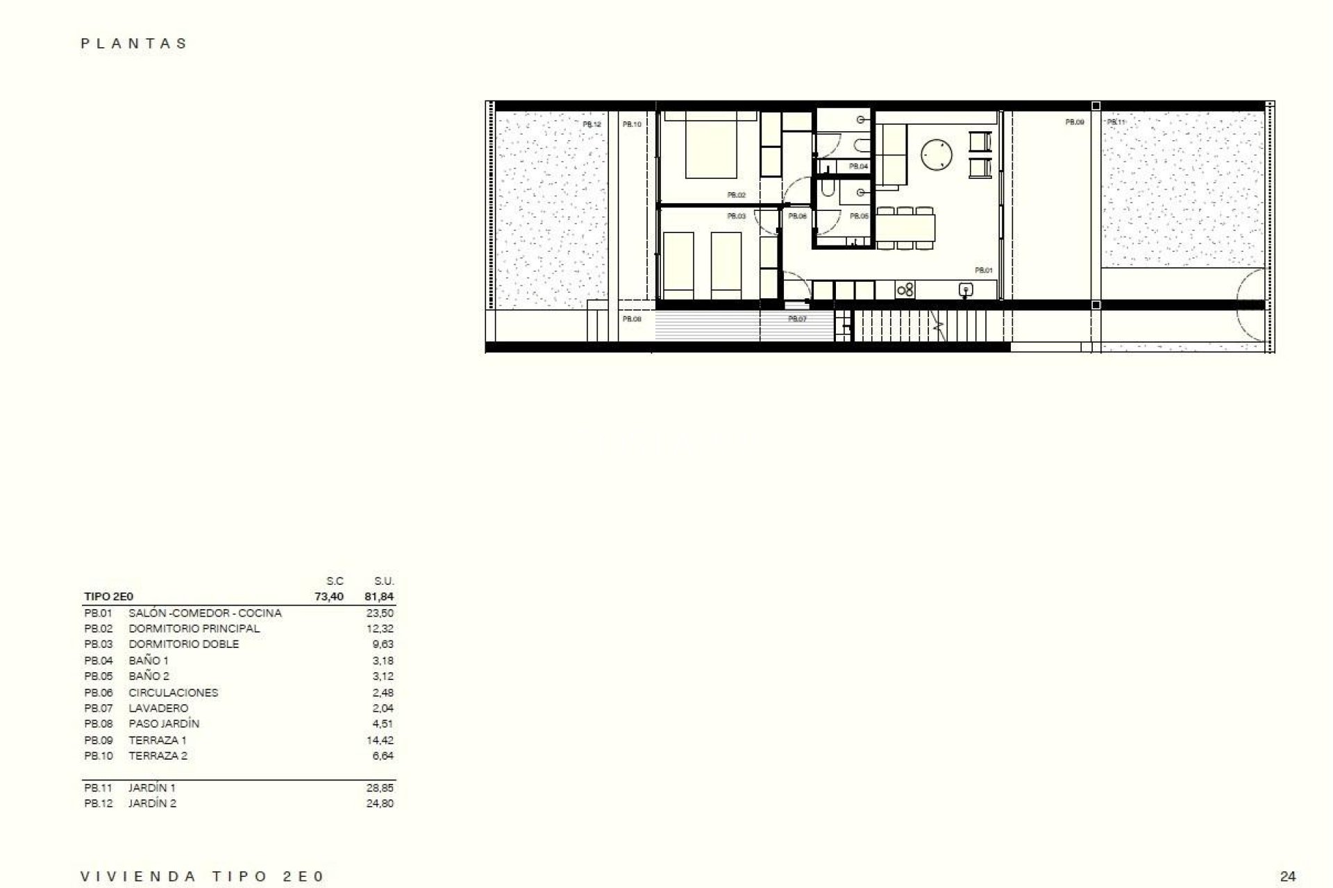
Torrevieja · Los Balcones Apartments · New Build

#Ref: NB-94889
€ 259.000
  • Built 81m2
  • Plot 53m2
  • Bedrooms 2
  • Bathrooms 2
  • Pool Yes

Torrevieja · Los Balcones Apartments · New Build

Description

New Build Residential Apartments in Los Balcones, Torrevieja

Features

Bedrooms: 2
Bathrooms: 2
Built: 81m2
Usable: 73m2
Plot: 53m2
Pool: Yes
Distance to beach: 3500 Mts.
Communal Pool
Garden
Gated
Number of Parking Spaces: 1
Location: Coastal, Urbanisation
Air Conditioning: Pre-Installed
Double Bedrooms: 2
Near Schools
Near Commercial Center
Useable Build Space: 73 Msq.
Terrace: 20 Msq.
Beach: 3500 Meters
Parking - Space
Storage / Trastero

Location

Ask for info

Contact with Costa Group Estates

Responsable del tratamiento: VDM ESTATES GROUP SL, Finalidad del tratamiento: Gestión y control de los servicios ofrecidos a través de la página Web de Servicios inmobiliarios, Envío de información a traves de newsletter y otros, Legitimación: Por consentimiento, Destinatarios: No se cederan los datos, salvo para elaborar contabilidad, Derechos de las personas interesadas: Acceder, rectificar y suprimir los datos, solicitar la portabilidad de los mismos, oponerse altratamiento y solicitar la limitación de éste, Procedencia de los datos: El Propio interesado, Información Adicional: Puede consultarse la información adicional y detallada sobre protección de datos Aquí.
WhatsApp