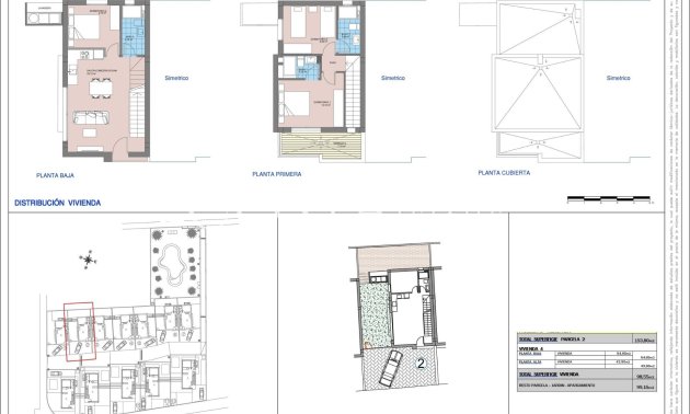
New Semi-Detached Villas by the Sea in La Marina - El Pinet Beach Exclusive Mediterranean Living Near the Beach This new residential development of semi-detached villas in La Marina, just 500 meters from El Pinet Beach, offers an unbeatable combination of modern design and a privileged natural environment. Located next to the Las Salinas Natural Park, residents can enjoy golden sandy beaches, crystal-clear waters, protected dunes, and a centuries-old pine forest – the perfect place to live all year round or enjoy as a holiday retreat. Modern Mediterranean Villas Designed for Comfort The villas are distributed over two floors, featuring: 3 spacious bedrooms and 3 bathrooms Ground floor with open-plan kitchen and living room, one bedroom, one bathroom, and access to the private garden with parking space First floor with two bedrooms, both ensuite, and a large terrace connected to the master bedroom Each home has been designed with bright, comfortable interiors and high-quality finishes, creating a unique and welcoming atmosphere. Fully Equipped with Premium Features These villas are delivered with: Fully fitted kitchen with induction hob, extractor hood, oven, fridge and pre-installation for dishwasher Modern cabinetry with premium finishes Fully installed ducted air conditioning Electric shutters Community pool surrounded by landscaped gardens A Prime Location on the Costa Blanca Living in La Marina means enjoying all the conveniences of a well-serviced town while being surrounded by nature and the Mediterranean Sea. Within walking distance you will find shops, restaurants, and essential services. Distances to key points of interest: El Pinet Beach: 500 m Elche city: 17 km Alicante-Elche International Airport: 22 km Golf courses (La Marquesa, El Plantío): 15–20 km Alicante city and port: 30 km The Perfect Coastal Lifestyle Whether you are looking for a permanent residence, a second home, or a smart investment, these villas in El Pinet offer a lifestyle marked by sea, nature, and modern comfort. With year-round sunshine and a privileged location, La Marina is one of the most desirable places on the Costa Blanca. Contact us today to arrange a visit and secure your dream villa by the Mediterranean.